Elected Officials
Courts
Departments
Initiatives
Open Government
About
Login / Register
Home
/
Property & Tax Records
/
Property Records
/
Property & Tax Search
/
Parcel Profile
/
Print View
Search for Another Parcel
Parcel Profile
Historical Card
Sketches
Photos
Tax Map
Taxes
Print View
Print This Page
Address: 1137 W 8 ST
Parcel: 16030057021300
Parcel Profile
Address
1137 | W | 8 | ST
Street Status
PAVED | SIDEWALK
School District
CITY OF ERIE SCHOOL
Acreage
0.1572
Classification
R
Land Use Code
SINGLE FAMILY
Legal Description
1137 W 8 ST 41.25 X 165
Square Feet
1724
Topo
LEVEL
Utility
ALL PUBLIC
Zoning
Please contact your municipal zoning officer
Deed Book
0861
Deed Page
0492
2026 Tax Values
Land Value / Taxable
9,600 / 9,600.00
Building Value / Taxable
45,900 / 45,900.00
Total Value / Taxable
55,500 / 55,500.00
Clean & Green
Inactive
Homestead Status
Active
Farmstead Status
Inactive
Lerta Amount
0
Lerta Expiration Year
0
Residential Data
Card 1
Style
OLD STYLE
Basement
FULL
Year Built
1891
Exterior Wall
ALUMINUM/VINYL
Total Living Area
1724
Full Baths
2
Half Baths
2
Fuel Type
GAS
Heating
CENTRAL
Heating System
FORCED AIR
Stories
2.0
Total Bedrooms
4
Total Family Rooms
0
Total Rooms
7
Fireplaces
0
Other Buildings & Yards
Description
Built
Width
Length
Area
ONE SIDE OPEN WD POLE BLDG
1950
10
20
200
Sales History
Sale Date
Type
Price
Book / Page
Other Info
3/13/2002
LAND & BUILDING
0
0861 / 0492
AFFIDAVIT
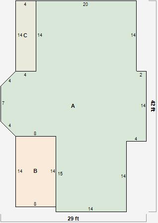
Parcel Sketches
Residential Card 1
A
MAIN
862 square feet
B
OFP OPEN FRAME PORCH
112 square feet
C
OFP OPEN FRAME PORCH
56 square feet
Parcel Images
Please note:
this tab is for informational purposes only and may not show all delinquencies, see the Taxes tab for more accurate delinquent taxes due.