Elected Officials
Courts
Departments
Initiatives
Open Government
About
Login / Register
Home
/
Property & Tax Records
/
Property Records
/
Property & Tax Search
/
Parcel Profile
/
Print View
Search for Another Parcel
Parcel Profile
Historical Card
Sketches
Photos
Tax Map
Taxes
Print View
Print This Page
Address: 1126 W 9 ST
Parcel: 16030057023300
Parcel Profile
Address
1126 | W | 9 | ST
Street Status
PAVED | SIDEWALK
School District
CITY OF ERIE SCHOOL
Acreage
0.1562
Classification
R
Land Use Code
SINGLE FAMILY
Legal Description
1126 W 9 ST 41.25 X 165
Square Feet
1728
Topo
LEVEL
Utility
ALL PUBLIC
Zoning
Please contact your municipal zoning officer
Deed Book
1390
Deed Page
0766
2026 Tax Values
Land Value / Taxable
9,600 / 9,600.00
Building Value / Taxable
69,890 / 69,890.00
Total Value / Taxable
79,490 / 79,490.00
Clean & Green
Inactive
Homestead Status
Inactive
Farmstead Status
Inactive
Lerta Amount
0
Lerta Expiration Year
0
Residential Data
Card 1
Style
OLD STYLE
Basement
FULL
Year Built
1892
Exterior Wall
ALUMINUM/VINYL
Total Living Area
1728
Full Baths
2
Half Baths
0
Fuel Type
GAS
Heating
CENTRAL
Heating System
FORCED AIR
Stories
2.0
Total Bedrooms
4
Total Family Rooms
0
Total Rooms
9
Fireplaces
0
Other Buildings & Yards
Description
Built
Width
Length
Area
FLAT BARN
1920
18
24
432
Sales History
Sale Date
Type
Price
Book / Page
Other Info
1/19/2007
LAND & BUILDING
85000
1390 / 0766
SPECIAL WARRANTY DEED
10/21/1960
0
0828 / 0384
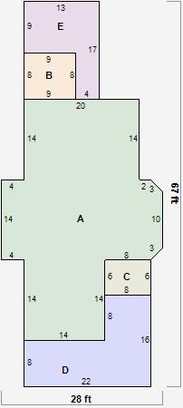
Parcel Sketches
Residential Card 1
A
MAIN
864 square feet
B
EFP ENCL FRAME PORCH
72 square feet
C
EFP ENCL FRAME PORCH
48 square feet
D
OFP OPEN FRAME PORCH
240 square feet
E
WDDCK WOOD DECKS
149 square feet
Parcel Images
Please note:
this tab is for informational purposes only and may not show all delinquencies, see the Taxes tab for more accurate delinquent taxes due.