Elected Officials
Courts
Departments
Initiatives
Open Government
About
Login / Register
Home
/
Property & Tax Records
/
Property Records
/
Property & Tax Search
/
Parcel Profile
/
Print View
Search for Another Parcel
Parcel Profile
Historical Card
Sketches
Photos
Tax Map
Taxes
Print View
Print This Page
Address: 821 CRANBERRY ST
Parcel: 16030057023900
Parcel Profile
Address
821 | CRANBERRY | ST
Street Status
PAVED | SIDEWALK
School District
CITY OF ERIE SCHOOL
Acreage
0.0781
Classification
R
Land Use Code
SINGLE FAMILY
Legal Description
821 CRANBERRY ST 41.25 X 82.5
Square Feet
1310
Topo
LEVEL
Utility
ALL PUBLIC
Zoning
Please contact your municipal zoning officer
Deed Book
1097
Deed Page
0175
2026 Tax Values
Land Value / Taxable
8,300 / 8,300.00
Building Value / Taxable
49,770 / 49,770.00
Total Value / Taxable
58,070 / 58,070.00
Clean & Green
Inactive
Homestead Status
Active
Farmstead Status
Inactive
Lerta Amount
0
Lerta Expiration Year
0
Residential Data
Card 1
Style
OLD STYLE
Basement
FULL
Year Built
1897
Exterior Wall
ALUMINUM/VINYL
Total Living Area
1310
Full Baths
1
Half Baths
0
Fuel Type
GAS
Heating
CENTRAL
Heating System
FORCED AIR
Stories
2.0
Total Bedrooms
3
Total Family Rooms
0
Total Rooms
6
Fireplaces
0
Other Buildings & Yards
Description
Built
Width
Length
Area
FRAME OR CB DETACHED GARAGE
1959
14
30
420
Sales History
Sale Date
Type
Price
Book / Page
Other Info
5/31/1973
0
1097 / 0175
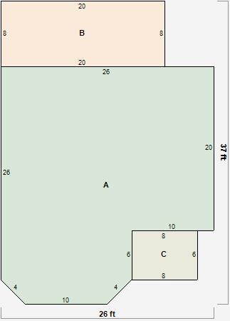
Parcel Sketches
Residential Card 1
A
MAIN
655 square feet
B
EFP ENCL FRAME PORCH
160 square feet
C
OFP OPEN FRAME PORCH
48 square feet
Parcel Images
Please note:
this tab is for informational purposes only and may not show all delinquencies, see the Taxes tab for more accurate delinquent taxes due.