Elected Officials
Courts
Departments
Initiatives
Open Government
About
Login / Register
Home
/
Property & Tax Records
/
Property Records
/
Property & Tax Search
/
Parcel Profile
/
Print View
Search for Another Parcel
Parcel Profile
Historical Card
Sketches
Photos
Tax Map
Taxes
Print View
Print This Page
Address: 1231 W 9 ST
Parcel: 16030059011100
Parcel Profile
Address
1231 | W | 9 | ST
Street Status
PAVED
School District
CITY OF ERIE SCHOOL
Acreage
0.1562
Classification
R
Land Use Code
SINGLE FAMILY
Legal Description
1231 W 9 ST 41.25 X 165
Square Feet
1786
Topo
LEVEL
Utility
ALL PUBLIC
Zoning
Please contact your municipal zoning officer
Deed Book
2017
Deed Page
004227
2025 Tax Values
Land Value / Taxable
9,600 / 9,600.00
Building Value / Taxable
77,990 / 77,990.00
Total Value / Taxable
87,590 / 87,590.00
Clean & Green
Inactive
Homestead Status
Active
Farmstead Status
Inactive
Lerta Amount
0
Lerta Expiration Year
0
Residential Data
Card 1
Style
OLD STYLE
Basement
FULL
Year Built
1912
Exterior Wall
BLOCK
Total Living Area
1786
Full Baths
1
Half Baths
0
Fuel Type
GAS
Heating
CENTRAL
Heating System
FORCED AIR
Stories
2.0
Total Bedrooms
3
Total Family Rooms
0
Total Rooms
5
Fireplaces
0
Other Buildings & Yards
Description
Built
Width
Length
Area
FRAME OR CB DETACHED GARAGE
1916
12
36
432
Sales History
Sale Date
Type
Price
Book / Page
Other Info
3/1/2017
LAND & BUILDING
0
2017 / 004227
QUIT CLAIM DEED
7/7/1982
0
1462 / 0498
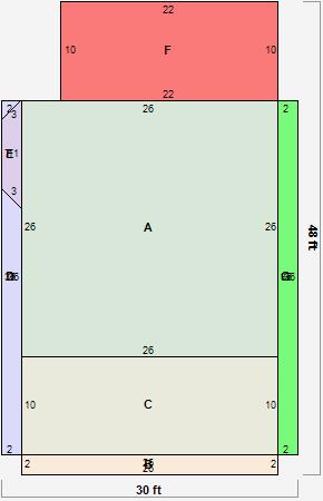
Parcel Sketches
Residential Card 1
A
MAIN
676 square feet
B
FROVR FRAME OVERHANG
52 square feet
C
OFP OPEN FRAME PORCH
260 square feet
D
FROVR FRAME OVERHANG
72 square feet
E
FRBAY FRAME BAY
18 square feet
F
UNFIN BSMT BASEMENT UNFINISHED 1S FR ONE STORY FRAME
220 square feet
G
FROVR FRAME OVERHANG
72 square feet
Parcel Images