Elected Officials
Courts
Departments
Initiatives
Open Government
About
Login / Register
Home
/
Property & Tax Records
/
Property Records
/
Property & Tax Search
/
Parcel Profile
/
Print View
Search for Another Parcel
Parcel Profile
Historical Card
Sketches
Photos
Tax Map
Taxes
Print View
Print This Page
Address: 1327 W 10 ST
Parcel: 16030060011300
Parcel Profile
Address
1327 | W | 10 | ST
Street Status
PAVED
School District
CITY OF ERIE SCHOOL
Acreage
0.1212
Classification
R
Land Use Code
SINGLE FAMILY
Legal Description
1327 W 10 ST 32 X 165
Square Feet
1866
Topo
LEVEL
Utility
ALL PUBLIC
Zoning
Please contact your municipal zoning officer
Deed Book
2018
Deed Page
013422
2026 Tax Values
Land Value / Taxable
9,300 / 9,300.00
Building Value / Taxable
49,200 / 49,200.00
Total Value / Taxable
58,500 / 58,500.00
Clean & Green
Inactive
Homestead Status
Inactive
Farmstead Status
Inactive
Lerta Amount
0
Lerta Expiration Year
0
Residential Data
Card 1
Style
OLD STYLE
Basement
FULL
Year Built
1920
Exterior Wall
BRICK
Total Living Area
1866
Full Baths
1
Half Baths
0
Fuel Type
GAS
Heating
CENTRAL
Heating System
FORCED AIR
Stories
2.0
Total Bedrooms
3
Total Family Rooms
0
Total Rooms
6
Fireplaces
0
Other Buildings & Yards
Description
Built
Width
Length
Area
FRAME OR CB DETACHED GARAGE
1920
10
29
290
Sales History
Sale Date
Type
Price
Book / Page
Other Info
7/6/2018
LAND & BUILDING
89900
2018 / 013422
12/7/2012
LAND & BUILDING
0
2012 / 033497
DEED
8/28/2001
LAND & BUILDING
32000
804 / 1600
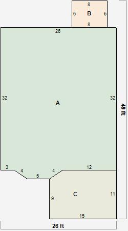
Parcel Sketches
Residential Card 1
A
MAIN
848 square feet
B
EFP ENCL FRAME PORCH
48 square feet
C
OMP OPEN MASONRY PORCH
162 square feet
Parcel Images
Please note:
this tab is for informational purposes only and may not show all delinquencies, see the Taxes tab for more accurate delinquent taxes due.