Elected Officials
Courts
Departments
Initiatives
Open Government
About
Login / Register
Home
/
Property & Tax Records
/
Property Records
/
Property & Tax Search
/
Parcel Profile
/
Print View
Search for Another Parcel
Parcel Profile
Historical Card
Sketches
Photos
Tax Map
Taxes
Print View
Print This Page
Address: 906 WESCHLER AVE
Parcel: 16031003010700
Parcel Profile
Address
906 | WESCHLER | AVE
Street Status
PAVED
School District
CITY OF ERIE SCHOOL
Acreage
0.1148
Classification
R
Land Use Code
SINGLE FAMILY
Legal Description
906 WESCHLER AVE 40X125
Square Feet
1977
Topo
LEVEL
Utility
ALL PUBLIC
Zoning
Please contact your municipal zoning officer
Deed Book
1158
Deed Page
1542
2025 Tax Values
Land Value / Taxable
9,300 / 9,300.00
Building Value / Taxable
71,850 / 71,850.00
Total Value / Taxable
81,150 / 81,150.00
Clean & Green
Inactive
Homestead Status
Active
Farmstead Status
Inactive
Lerta Amount
0
Lerta Expiration Year
0
Residential Data
Card 1
Style
OLD STYLE
Basement
FULL
Year Built
1930
Exterior Wall
ALUMINUM/VINYL
Total Living Area
1977
Full Baths
1
Half Baths
1
Fuel Type
GAS
Heating
CENTRAL A/C
Heating System
FORCED AIR
Stories
2.0
Total Bedrooms
3
Total Family Rooms
0
Total Rooms
7
Fireplaces
1
Other Buildings & Yards
Description
Built
Width
Length
Area
FRAME OR CB DETACHED GARAGE
1930
18
21
378
Sales History
Sale Date
Type
Price
Book / Page
Other Info
7/28/2004
LAND & BUILDING
54450
1158 / 1542
WARRANTY/SURVIVORSHIP DEED
1/7/2004
LAND & BUILDING
0
1099 / 1771
SHERIFF'S DED
12/22/2003
LAND & BUILDING
0
1096 / 0584
SHERIFF'S DED
2/14/1997
0
0483 / 1809
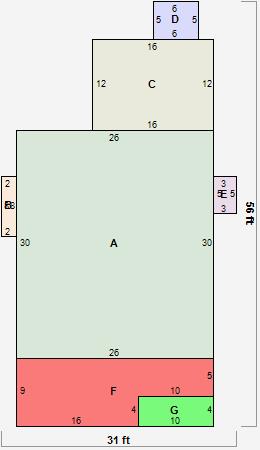
Parcel Sketches
Residential Card 1
A
MAIN
780 square feet
B
FRBAY FRAME BAY
16 square feet
C
1S FR ONE STORY FRAME
192 square feet
D
OFP OPEN FRAME PORCH
30 square feet
E
FRBAY FRAME BAY
15 square feet
F
1S FR ONE STORY FRAME
194 square feet
G
OFP OPEN FRAME PORCH
40 square feet
Parcel Images