Elected Officials
Courts
Departments
Initiatives
Open Government
About
Login / Register
Home
/
Property & Tax Records
/
Property Records
/
Property & Tax Search
/
Parcel Profile
/
Print View
Search for Another Parcel
Parcel Profile
Historical Card
Sketches
Photos
Tax Map
Taxes
Print View
Print This Page
Address: 1680 W 9 ST
Parcel: 16031005030700
Parcel Profile
Address
1680 | W | 9 | ST
Street Status
PAVED
School District
CITY OF ERIE SCHOOL
Acreage
0.1222
Classification
R
Land Use Code
SINGLE FAMILY
Legal Description
1680 W 9 ST 48.41 X 110
Square Feet
1560
Topo
LEVEL
Utility
ALL PUBLIC
Zoning
Please contact your municipal zoning officer
Deed Book
2018
Deed Page
019056
2026 Tax Values
Land Value / Taxable
9,300 / 9,300.00
Building Value / Taxable
66,150 / 66,150.00
Total Value / Taxable
75,450 / 75,450.00
Clean & Green
Inactive
Homestead Status
Active
Farmstead Status
Inactive
Lerta Amount
0
Lerta Expiration Year
0
Residential Data
Card 1
Style
OLD STYLE
Basement
FULL
Year Built
1927
Exterior Wall
ALUMINUM/VINYL
Total Living Area
1560
Full Baths
1
Half Baths
0
Fuel Type
GAS
Heating
CENTRAL A/C
Heating System
FORCED AIR
Stories
2.0
Total Bedrooms
3
Total Family Rooms
0
Total Rooms
6
Fireplaces
0
Other Buildings & Yards
Description
Built
Width
Length
Area
FRAME OR CB DETACHED GARAGE
1927
20
20
400
Sales History
Sale Date
Type
Price
Book / Page
Other Info
9/14/2018
LAND & BUILDING
115000
2018 / 019056
SPECIAL WARRANTY DEED
4/28/2008
LAND & BUILDING
91000
1491 / 0938
WARRANTY/SURVIVORSHIP DEED
10/5/1994
0
0549 / 0024
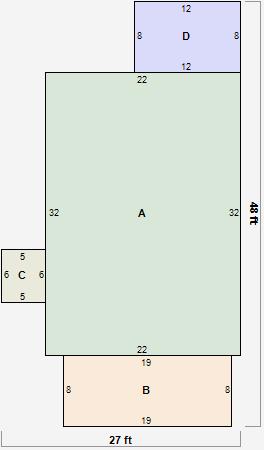
Parcel Sketches
Residential Card 1
A
MAIN
704 square feet
B
UNFIN BSMT BASEMENT UNFINISHED 1S FR ONE STORY FRAME
152 square feet
C
EFP ENCL FRAME PORCH
30 square feet
D
UNFIN BSMT BASEMENT UNFINISHED EFP ENCL FRAME PORCH
96 square feet
Parcel Images
Please note:
this tab is for informational purposes only and may not show all delinquencies, see the Taxes tab for more accurate delinquent taxes due.