Elected Officials
Courts
Departments
Initiatives
Open Government
About
Login / Register
Home
/
Property & Tax Records
/
Property Records
/
Property & Tax Search
/
Parcel Profile
/
Print View
Search for Another Parcel
Parcel Profile
Historical Card
Sketches
Photos
Tax Map
Taxes
Print View
Print This Page
Address: 1675 W 13 ST
Parcel: 16031007010200
Parcel Profile
Address
1675 | W | 13 | ST
Street Status
PAVED
School District
CITY OF ERIE SCHOOL
Acreage
0.0898
Classification
R
Land Use Code
SINGLE FAMILY
Legal Description
1675 W 13 ST 35X111.68
Square Feet
1086
Topo
LEVEL
Utility
ALL PUBLIC
Zoning
Please contact your municipal zoning officer
Deed Book
2015
Deed Page
021671
2026 Tax Values
Land Value / Taxable
8,600 / 8,600.00
Building Value / Taxable
20,210 / 20,210.00
Total Value / Taxable
28,810 / 28,810.00
Clean & Green
Inactive
Homestead Status
Inactive
Farmstead Status
Inactive
Lerta Amount
0
Lerta Expiration Year
0
Residential Data
Card 1
Style
TWIN
Basement
FULL
Year Built
1918
Exterior Wall
BRICK
Total Living Area
1086
Full Baths
1
Half Baths
0
Fuel Type
GAS
Heating
CENTRAL
Heating System
FORCED AIR
Stories
2.0
Total Bedrooms
3
Total Family Rooms
0
Total Rooms
6
Fireplaces
0
Other Buildings & Yards
No OBY Data Found
Sales History
Sale Date
Type
Price
Book / Page
Other Info
9/29/2015
LAND & BUILDING
20000
2015 / 021671
SPECIAL WARRANTY DEED
1/30/2009
LAND & BUILDING
0
1541 / 1250
QUIT CLAIM DEED
5/31/1989
0
0087 / 2224
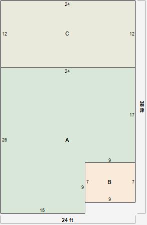
Parcel Sketches
Residential Card 1
A
MAIN
543 square feet
B
EFP ENCL FRAME PORCH
63 square feet
C
OFP OPEN FRAME PORCH
288 square feet
Parcel Images
Please note:
this tab is for informational purposes only and may not show all delinquencies, see the Taxes tab for more accurate delinquent taxes due.