Elected Officials
Courts
Departments
Initiatives
Open Government
About
Login / Register
Home
/
Property & Tax Records
/
Property Records
/
Property & Tax Search
/
Parcel Profile
/
Print View
Search for Another Parcel
Parcel Profile
Historical Card
Sketches
Photos
Tax Map
Taxes
Print View
Print This Page
Address: 1684 W 14 ST
Parcel: 16031007011100
Parcel Profile
Address
1684 | W | 14 | ST
Street Status
PAVED
School District
CITY OF ERIE SCHOOL
Acreage
0.0835
Classification
R
Land Use Code
SINGLE FAMILY
Legal Description
1684 W 14 ST 33.83X107.55
Square Feet
1252
Topo
LEVEL
Utility
ALL PUBLIC
Zoning
Please contact your municipal zoning officer
Deed Book
2025
Deed Page
001515
2026 Tax Values
Land Value / Taxable
8,400 / 8,400.00
Building Value / Taxable
14,430 / 14,430.00
Total Value / Taxable
22,830 / 22,830.00
Clean & Green
Inactive
Homestead Status
Inactive
Farmstead Status
Inactive
Lerta Amount
0
Lerta Expiration Year
0
Residential Data
Card 1
Style
ROW
Basement
FULL
Year Built
1918
Exterior Wall
BRICK
Total Living Area
1252
Full Baths
1
Half Baths
0
Fuel Type
GAS
Heating
CENTRAL
Heating System
FORCED AIR
Stories
2.0
Total Bedrooms
3
Total Family Rooms
0
Total Rooms
6
Fireplaces
0
Other Buildings & Yards
No OBY Data Found
Sales History
Sale Date
Type
Price
Book / Page
Other Info
1/30/2025
LAND & BUILDING
450000
2025 / 001515
SPECIAL WARRANTY DEED
3/28/2019
LAND & BUILDING
0
2019 / 005372
SPECIAL WARRANTY DEED
10/17/2012
LAND & BUILDING
22350
2012 / 028610
DEED
10/17/2012
0
2012 / 028609
6/1/2005
LAND & BUILDING
0
1238 / 2182
QUIT CLAIM DEED
4/26/1994
0
0330 / 2297
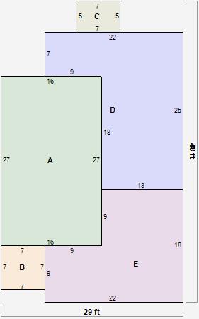
Parcel Sketches
Residential Card 1
A
MAIN
432 square feet
B
OFP OPEN FRAME PORCH
49 square feet
C
EFP ENCL FRAME PORCH
35 square feet
D
1SMAS MASONRY
388 square feet
E
EFP ENCL FRAME PORCH
315 square feet
Parcel Images
Please note:
this tab is for informational purposes only and may not show all delinquencies, see the Taxes tab for more accurate delinquent taxes due.