Elected Officials
Courts
Departments
Initiatives
Open Government
About
Login / Register
Home
/
Property & Tax Records
/
Property Records
/
Property & Tax Search
/
Parcel Profile
/
Print View
Search for Another Parcel
Parcel Profile
Historical Card
Sketches
Photos
Tax Map
Taxes
Print View
Print This Page
Address: 1690 W 13 ST
Parcel: 16031007020900
Parcel Profile
Address
1690 | W | 13 | ST
Street Status
PAVED
School District
CITY OF ERIE SCHOOL
Acreage
0.0724
Classification
R
Land Use Code
SINGLE FAMILY
Legal Description
1690 W 13 ST IRREG
Square Feet
1188
Topo
LEVEL
Utility
ALL PUBLIC
Zoning
Please contact your municipal zoning officer
Deed Book
2021
Deed Page
011222
2026 Tax Values
Land Value / Taxable
8,100 / 8,100.00
Building Value / Taxable
26,130 / 26,130.00
Total Value / Taxable
34,230 / 34,230.00
Clean & Green
Inactive
Homestead Status
Active
Farmstead Status
Inactive
Lerta Amount
0
Lerta Expiration Year
0
Residential Data
Card 1
Style
ROW
Basement
FULL
Year Built
1918
Exterior Wall
STUCCO
Total Living Area
1188
Full Baths
1
Half Baths
0
Fuel Type
GAS
Heating
CENTRAL
Heating System
FORCED AIR
Stories
2.0
Total Bedrooms
3
Total Family Rooms
1
Total Rooms
6
Fireplaces
0
Other Buildings & Yards
No OBY Data Found
Sales History
Sale Date
Type
Price
Book / Page
Other Info
5/5/2021
LAND & BUILDING
60000
2021 / 011222
SPECIAL WARRANTY DEED
7/29/2015
LAND & BUILDING
0
2015 / 016202
SPECIAL WARRANTY DEED
6/19/1992
0
0217 / 2041
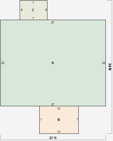
Parcel Sketches
Residential Card 1
A
MAIN
594 square feet
B
OFP OPEN FRAME PORCH
70 square feet
C
EFP ENCL FRAME PORCH
35 square feet
Parcel Images
Please note:
this tab is for informational purposes only and may not show all delinquencies, see the Taxes tab for more accurate delinquent taxes due.