Elected Officials
Courts
Departments
Initiatives
Open Government
About
Login / Register
Home
/
Property & Tax Records
/
Property Records
/
Property & Tax Search
/
Parcel Profile
/
Print View
Search for Another Parcel
Parcel Profile
Historical Card
Sketches
Photos
Tax Map
Taxes
Print View
Print This Page
Address: 1817 W 13 ST
Parcel: 16031011010600
Parcel Profile
Address
1817 | W | 13 | ST
Street Status
PAVED
School District
CITY OF ERIE SCHOOL
Acreage
0.0892
Classification
R
Land Use Code
SINGLE FAMILY
Legal Description
1817 W 13 ST 35 X IRREG
Square Feet
1116
Topo
LEVEL
Utility
ALL PUBLIC
Zoning
Please contact your municipal zoning officer
Deed Book
1008
Deed Page
0416
2026 Tax Values
Land Value / Taxable
8,600 / 8,600.00
Building Value / Taxable
27,000 / 27,000.00
Total Value / Taxable
35,600 / 35,600.00
Clean & Green
Inactive
Homestead Status
Active
Farmstead Status
Inactive
Lerta Amount
0
Lerta Expiration Year
0
Residential Data
Card 1
Style
TWIN
Basement
FULL
Year Built
1918
Exterior Wall
BRICK
Total Living Area
1116
Full Baths
1
Half Baths
0
Fuel Type
GAS
Heating
CENTRAL
Heating System
FORCED AIR
Stories
2.0
Total Bedrooms
3
Total Family Rooms
0
Total Rooms
6
Fireplaces
0
Other Buildings & Yards
Description
Built
Width
Length
Area
FRAME OR CB DETACHED GARAGE
1916
12
20
240
Sales History
Sale Date
Type
Price
Book / Page
Other Info
8/21/1969
0
1008 / 0416
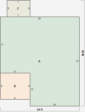
Parcel Sketches
Residential Card 1
A
MAIN
558 square feet
B
EMP ENCL MASONRY PORCH
72 square feet
C
EFP ENCL FRAME PORCH
35 square feet
Parcel Images