Elected Officials
Courts
Departments
Initiatives
Open Government
About
Login / Register
Home
/
Property & Tax Records
/
Property Records
/
Property & Tax Search
/
Parcel Profile
/
Print View
Search for Another Parcel
Parcel Profile
Historical Card
Sketches
Photos
Tax Map
Taxes
Print View
Print This Page
Address: 1954 W 21 ST
Parcel: 16031022031400
Parcel Profile
Address
1954 | W | 21 | ST
Street Status
PAVED
School District
CITY OF ERIE SCHOOL
Acreage
0.1302
Classification
R
Land Use Code
SINGLE FAMILY
Legal Description
1954 W 21 ST 42 X 135
Square Feet
882
Topo
LEVEL
Utility
ALL PUBLIC
Zoning
Please contact your municipal zoning officer
Deed Book
1003
Deed Page
0573
2026 Tax Values
Land Value / Taxable
9,400 / 9,400.00
Building Value / Taxable
41,260 / 41,260.00
Total Value / Taxable
50,660 / 50,660.00
Clean & Green
Inactive
Homestead Status
Inactive
Farmstead Status
Inactive
Lerta Amount
0
Lerta Expiration Year
0
Residential Data
Card 1
Style
BUNGALOW
Basement
FULL
Year Built
1928
Exterior Wall
ALUMINUM/VINYL
Total Living Area
882
Full Baths
1
Half Baths
0
Fuel Type
GAS
Heating
CENTRAL
Heating System
FORCED AIR
Stories
1.0
Total Bedrooms
1
Total Family Rooms
0
Total Rooms
4
Fireplaces
0
Other Buildings & Yards
Description
Built
Width
Length
Area
FRAME UTILITY SHED
1970
13
20
260
Sales History
Sale Date
Type
Price
Book / Page
Other Info
6/5/1969
0
1003 / 0573
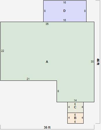
Parcel Sketches
Residential Card 1
A
MAIN
882 square feet
B
MA STOOP/TERR MAS STOOP
24 square feet
C
EFP ENCL FRAME PORCH
24 square feet
D
EFP ENCL FRAME PORCH
128 square feet
Parcel Images
Please note:
this tab is for informational purposes only and may not show all delinquencies, see the Taxes tab for more accurate delinquent taxes due.