Elected Officials
Courts
Departments
Initiatives
Open Government
About
Login / Register
Home
/
Property & Tax Records
/
Property Records
/
Property & Tax Search
/
Parcel Profile
/
Print View
Search for Another Parcel
Parcel Profile
Historical Card
Sketches
Photos
Tax Map
Taxes
Print View
Print This Page
Address: 207 SASSAFRAS ST
Parcel: 17040006022100
Parcel Profile
Address
207 | SASSAFRAS | ST
Street Status
PAVED
School District
CITY OF ERIE SCHOOL
Acreage
0.0663
Classification
R
Land Use Code
TWO FAMILY
Legal Description
207 SASSAFRAS ST 35X82.5
Square Feet
1728
Topo
LEVEL
Utility
NONE
Zoning
Please contact your municipal zoning officer
Deed Book
2021
Deed Page
016827
2026 Tax Values
Land Value / Taxable
22,000 / 22,000.00
Building Value / Taxable
49,400 / 49,400.00
Total Value / Taxable
71,400 / 71,400.00
Clean & Green
Inactive
Homestead Status
Inactive
Farmstead Status
Inactive
Lerta Amount
0
Lerta Expiration Year
0
Residential Data
Card 1
Style
OLD STYLE
Basement
FULL
Year Built
1890
Exterior Wall
COMPOSITION
Total Living Area
1728
Full Baths
2
Half Baths
0
Fuel Type
GAS
Heating
CENTRAL
Heating System
FORCED AIR
Stories
2.0
Total Bedrooms
4
Total Family Rooms
0
Total Rooms
6
Fireplaces
0
Other Buildings & Yards
No OBY Data Found
Sales History
Sale Date
Type
Price
Book / Page
Other Info
6/29/2021
LAND & BUILDING
77622
2021 / 016827
SPECIAL WARRANTY DEED
7/29/2016
LAND & BUILDING
0
2016 / 016089
SPECIAL WARRANTY DEED
7/27/1971
0
1049 / 0018
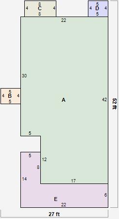
Parcel Sketches
Residential Card 1
A
MAIN
864 square feet
B
EFP ENCL FRAME PORCH
20 square feet
C
WDDCK WOOD DECKS
32 square feet
D
MA STOOP/TERR MAS STOOP
20 square feet
E
OFP OPEN FRAME PORCH
172 square feet
Parcel Images
Please note:
this tab is for informational purposes only and may not show all delinquencies, see the Taxes tab for more accurate delinquent taxes due.