Elected Officials
Courts
Departments
Initiatives
Open Government
About
Login / Register
Home
/
Property & Tax Records
/
Property Records
/
Property & Tax Search
/
Parcel Profile
/
Print View
Search for Another Parcel
Parcel Profile
Historical Card
Sketches
Photos
Tax Map
Taxes
Print View
Print This Page
Address: 332 W 7TH ST
Parcel: 17040010022200
Parcel Profile
Address
332 | W | 7TH | ST
Street Status
PAVED
School District
CITY OF ERIE SCHOOL
Acreage
0.1515
Classification
R
Land Use Code
TWO FAMILY
Legal Description
332 W 7TH ST 40 X 165
Square Feet
4362
Topo
LEVEL
Utility
ALL PUBLIC
Zoning
Please contact your municipal zoning officer
Deed Book
2014
Deed Page
017173
2026 Tax Values
Land Value / Taxable
8,800 / 8,800.00
Building Value / Taxable
89,590 / 47,295.00
Total Value / Taxable
98,390 / 56,095.00
Clean & Green
Inactive
Homestead Status
Inactive
Farmstead Status
Inactive
Lerta Amount
42295.00
Lerta Expiration Year
2029
Residential Data
Card 1
Style
OLD STYLE
Basement
FULL
Year Built
1890
Exterior Wall
ALUMINUM/VINYL
Total Living Area
4362
Full Baths
3
Half Baths
0
Fuel Type
GAS
Heating
CENTRAL
Heating System
HOT WATER
Stories
2.0
Total Bedrooms
6
Total Family Rooms
0
Total Rooms
12
Fireplaces
0
Other Buildings & Yards
No OBY Data Found
Sales History
Sale Date
Type
Price
Book / Page
Other Info
8/15/2014
LAND & BUILDING
64500
2014 / 017173
SPECIAL WARRANTY DEED
9/2/1988
0
0006 / 3069
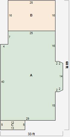
Parcel Sketches
Residential Card 1
A
MAIN
1397 square feet
B
UNFIN BSMT BASEMENT UNFINISHED 1S FR ONE STORY FRAME 1S FR ONE STORY FRAME
400 square feet
C
EFP ENCL FRAME PORCH
65 square feet
Parcel Images
Please note:
this tab is for informational purposes only and may not show all delinquencies, see the Taxes tab for more accurate delinquent taxes due.