Elected Officials
Courts
Departments
Initiatives
Open Government
About
Login / Register
Home
/
Property & Tax Records
/
Property Records
/
Property & Tax Search
/
Parcel Profile
/
Print View
Search for Another Parcel
Parcel Profile
Historical Card
Sketches
Photos
Tax Map
Taxes
Print View
Print This Page
Address: 319 21 W 5 ST
Parcel: 17040011010800
Parcel Profile
Address
319 | 21 | W | 5 | ST
Street Status
PAVED
School District
CITY OF ERIE SCHOOL
Acreage
0.2616
Classification
R
Land Use Code
TWO FAMILY
Legal Description
319 21 W 5 ST 76.58 X 165 IRREG | 0.2616 AC
Square Feet
2460
Topo
LEVEL
Utility
ALL PUBLIC
Zoning
Please contact your municipal zoning officer
Deed Book
2020
Deed Page
024552
2026 Tax Values
Land Value / Taxable
79,304 / 79,304.00
Building Value / Taxable
202,800 / 0.00
Total Value / Taxable
282,104 / 79,304.00
Clean & Green
Inactive
Homestead Status
Inactive
Farmstead Status
Inactive
Lerta Amount
202800.00
Lerta Expiration Year
2014
Residential Data
Card 1
Style
CONVENTIONAL
Year Built
2023
Exterior Wall
ALUMINUM/VINYL
Total Living Area
2460
Full Baths
2
Half Baths
2
Fuel Type
GAS
Heating
CENTRAL A/C
Heating System
FORCED AIR
Stories
2.0
Total Bedrooms
4
Total Family Rooms
0
Total Rooms
8
Fireplaces
0
Other Buildings & Yards
Description
Built
Width
Length
Area
FRAME OR CB DETACHED GARAGE
2021
0
0
1344
Sales History
Sale Date
Type
Price
Book / Page
Other Info
11/13/2020
LAND
0
2020 / 024552
QUIT CLAIM DEED
12/18/2018
LAND & BUILDING
105000
2018 / 026063
SPECIAL WARRANTY DEED
5/2/2003
LAND & BUILDING
40000
1006 / 1389
3/24/2003
LAND & BUILDING
0
0989 / 0329
TAX DEED
12/30/1999
LAND & BUILDING
49900
0681 / 1139
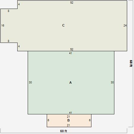
Parcel Sketches
Residential Card 1
A
MAIN
1230 square feet
B
OFP OPEN FRAME PORCH
126 square feet
C
FR GR FRAME GARAGE
1376 square feet
Parcel Images
Please note:
this tab is for informational purposes only and may not show all delinquencies, see the Taxes tab for more accurate delinquent taxes due.