Elected Officials
Courts
Departments
Initiatives
Open Government
About
Login / Register
Home
/
Property & Tax Records
/
Property Records
/
Property & Tax Search
/
Parcel Profile
/
Print View
Search for Another Parcel
Parcel Profile
Historical Card
Sketches
Photos
Tax Map
Taxes
Print View
Print This Page
Address: 331 W 4 ST
Parcel: 17040011021200
Parcel Profile
Address
331 | W | 4 | ST
Street Status
PAVED
School District
CITY OF ERIE SCHOOL
Acreage
0.1421
Classification
R
Land Use Code
TWO FAMILY
Legal Description
331 W 4TH ST 41.25X150
Square Feet
1178
Topo
LEVEL
Utility
ALL PUBLIC
Zoning
Please contact your municipal zoning officer
Deed Book
2013
Deed Page
033274
2026 Tax Values
Land Value / Taxable
8,700 / 8,700.00
Building Value / Taxable
31,100 / 31,100.00
Total Value / Taxable
39,800 / 39,800.00
Clean & Green
Inactive
Homestead Status
Inactive
Farmstead Status
Inactive
Lerta Amount
0
Lerta Expiration Year
0
Residential Data
Card 1
Style
BUNGALOW
Basement
PART
Year Built
1900
Exterior Wall
ALUMINUM/VINYL
Total Living Area
1178
Full Baths
2
Half Baths
0
Fuel Type
GAS
Heating
CENTRAL
Heating System
FORCED AIR
Stories
1.0
Total Bedrooms
2
Total Family Rooms
0
Total Rooms
6
Fireplaces
0
Other Buildings & Yards
No OBY Data Found
Sales History
Sale Date
Type
Price
Book / Page
Other Info
12/30/2013
LAND & BUILDING
65000
2013 / 033274
DEED
10/7/2009
LAND & BUILDING
10500
1595 / 2324
SPECIAL WARRANTY DEED
3/30/2007
LAND & BUILDING
0
1405 / 0490
WARRANTY/SURVIVORSHIP DEED
3/11/1976
0
1203 / 0001
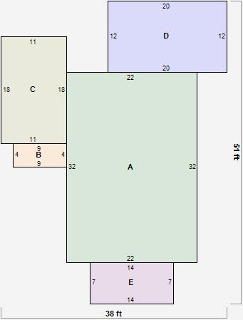
Parcel Sketches
Residential Card 1
A
MAIN
704 square feet
B
1S FR ONE STORY FRAME
36 square feet
C
1S FR ONE STORY FRAME
198 square feet
D
1S FR ONE STORY FRAME
240 square feet
E
EFP ENCL FRAME PORCH
98 square feet
Parcel Images
Please note:
this tab is for informational purposes only and may not show all delinquencies, see the Taxes tab for more accurate delinquent taxes due.