Elected Officials
Courts
Departments
Initiatives
Open Government
About
Login / Register
Home
/
Property & Tax Records
/
Property Records
/
Property & Tax Search
/
Parcel Profile
/
Print View
Search for Another Parcel
Parcel Profile
Historical Card
Sketches
Photos
Tax Map
Taxes
Print View
Print This Page
Address: 342 W 5 ST
Parcel: 17040011023100
Parcel Profile
Address
342 | W | 5 | ST
Street Status
PAVED | SIDEWALK
School District
CITY OF ERIE SCHOOL
Acreage
0.1421
Classification
R
Land Use Code
THREE FAMILY
Legal Description
342 W 5 ST 41.25 X 150
Square Feet
2598
Topo
LEVEL
Utility
ALL PUBLIC
Zoning
Please contact your municipal zoning officer
Deed Book
1455
Deed Page
0672
2026 Tax Values
Land Value / Taxable
8,700 / 8,700.00
Building Value / Taxable
68,000 / 68,000.00
Total Value / Taxable
76,700 / 76,700.00
Clean & Green
Inactive
Homestead Status
Inactive
Farmstead Status
Inactive
Lerta Amount
0.00
Lerta Expiration Year
2018
Residential Data
Card 1
Style
OLD STYLE
Basement
FULL
Year Built
1812
Exterior Wall
ALUMINUM/VINYL
Total Living Area
2598
Full Baths
3
Half Baths
0
Fuel Type
GAS
Heating
CENTRAL
Heating System
FORCED AIR
Stories
2.0
Total Bedrooms
5
Total Family Rooms
0
Total Rooms
10
Fireplaces
0
Other Buildings & Yards
Description
Built
Width
Length
Area
FRAME UTILITY SHED
1980
14
10
140
Sales History
Sale Date
Type
Price
Book / Page
Other Info
10/23/2007
LAND & BUILDING
49000
1455 / 0672
DEED
8/27/2007
LAND & BUILDING
49000
1442 / 1429
DEED
2/6/1974
0
1113 / 0391
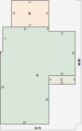
Parcel Sketches
Residential Card 1
A
MAIN
1197 square feet
B
1S FR ONE STORY FRAME
204 square feet
C
OFP OPEN FRAME PORCH
48 square feet
Parcel Images
Please note:
this tab is for informational purposes only and may not show all delinquencies, see the Taxes tab for more accurate delinquent taxes due.