Elected Officials
Courts
Departments
Initiatives
Open Government
About
Login / Register
Home
/
Property & Tax Records
/
Property Records
/
Property & Tax Search
/
Parcel Profile
/
Print View
Search for Another Parcel
Parcel Profile
Historical Card
Sketches
Photos
Tax Map
Taxes
Print View
Print This Page
Address: 312 W 4 ST
Parcel: 17040012013800
Parcel Profile
Address
312 | W | 4 | ST
Street Status
PAVED | SIDEWALK
School District
CITY OF ERIE SCHOOL
Acreage
0.1561
Classification
R
Land Use Code
THREE FAMILY
Legal Description
312 W 4TH ST 41.25 X 125
Square Feet
3267
Topo
LEVEL
Utility
ALL PUBLIC
Zoning
Please contact your municipal zoning officer
Deed Book
2022
Deed Page
008271
2026 Tax Values
Land Value / Taxable
8,800 / 8,800.00
Building Value / Taxable
63,200 / 63,200.00
Total Value / Taxable
72,000 / 72,000.00
Clean & Green
Inactive
Homestead Status
Inactive
Farmstead Status
Inactive
Lerta Amount
0
Lerta Expiration Year
0
Residential Data
Card 1
Style
OLD STYLE
Basement
FULL
Year Built
1857
Exterior Wall
ALUMINUM/VINYL
Total Living Area
3267
Full Baths
3
Half Baths
1
Fuel Type
GAS
Heating
CENTRAL
Heating System
FORCED AIR
Stories
1.5
Total Bedrooms
8
Total Family Rooms
0
Total Rooms
14
Fireplaces
0
Other Buildings & Yards
No OBY Data Found
Sales History
Sale Date
Type
Price
Book / Page
Other Info
4/19/2022
LAND & BUILDING
0
2022 / 008271
QUIT CLAIM DEED
3/15/2012
LAND & BUILDING
0
2012 / 006630
DEED
5/6/2011
LAND & BUILDING
0
2011 / 010169
DEED
5/18/2006
LAND & BUILDING
0
1328 / 2047
WARRANTY/SURVIVORSHIP DEED
6/12/2002
LAND & BUILDING
30000
889 / 1251
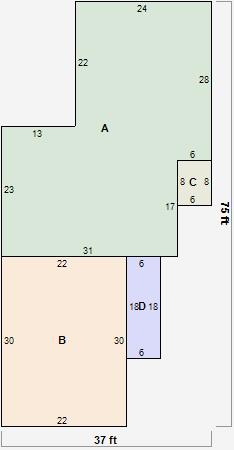
Parcel Sketches
Residential Card 1
A
MAIN
1277 square feet
B
1S FR ONE STORY FRAME AT FN ATTIC-FINISHED
660 square feet
C
OFP OPEN FRAME PORCH
48 square feet
D
UNFIN BSMT BASEMENT UNFINISHED 1S FR ONE STORY FRAME
108 square feet
Parcel Images
Please note:
this tab is for informational purposes only and may not show all delinquencies, see the Taxes tab for more accurate delinquent taxes due.