Elected Officials
Courts
Departments
Initiatives
Open Government
About
Login / Register
Home
/
Property & Tax Records
/
Property Records
/
Property & Tax Search
/
Parcel Profile
/
Print View
Search for Another Parcel
Parcel Profile
Historical Card
Sketches
Photos
Tax Map
Taxes
Print View
Print This Page
Address: 515 WALNUT ST
Parcel: 17040014011900
Parcel Profile
Address
515 | WALNUT | ST
Street Status
PAVED
School District
CITY OF ERIE SCHOOL
Acreage
0.1463
Classification
R
Land Use Code
SINGLE FAMILY
Legal Description
515 WALNUT ST 57.5 X 118.75 IRR
Square Feet
2616
Topo
LEVEL
Utility
ALL PUBLIC
Zoning
Please contact your municipal zoning officer
Deed Book
2024
Deed Page
004297
2026 Tax Values
Land Value / Taxable
9,775 / 9,775.00
Building Value / Taxable
150,000 / 150,000.00
Total Value / Taxable
159,775 / 159,775.00
Clean & Green
Inactive
Homestead Status
Inactive
Farmstead Status
Inactive
Lerta Amount
0
Lerta Expiration Year
0
Residential Data
Card 1
Style
OLD STYLE
Basement
FULL
Year Built
1873
Exterior Wall
ALUMINUM/VINYL
Total Living Area
2616
Full Baths
2
Half Baths
1
Fuel Type
GAS
Heating
CENTRAL
Heating System
HOT WATER
Stories
2.0
Total Bedrooms
5
Total Family Rooms
0
Total Rooms
8
Fireplaces
1
Other Buildings & Yards
Description
Built
Width
Length
Area
FRAME OR CB DETACHED GARAGE
1912
22
30
660
Sales History
Sale Date
Type
Price
Book / Page
Other Info
3/21/2024
LAND & BUILDING
275000
2024 / 004297
SPECIAL WARRANTY DEED
9/1/2016
LAND & BUILDING
428000
2016 / 018998
DEED
10/2/2014
LAND & BUILDING
0
2014 / 021123
QUIT CLAIM DEED
11/8/2013
LAND & BUILDING
0
2013 / 029390
QUIT CLAIM DEED
1/1/1965
0
928 / 195
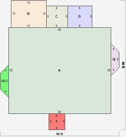
Parcel Sketches
Residential Card 1
A
MAIN
1216 square feet
B
1S FR ONE STORY FRAME
130 square feet
C
FR UT FRAME UTILITY BUILDING
64 square feet
D
OFP OPEN FRAME PORCH
72 square feet
E
FRBAY FRAME BAY
27 square feet
F
EFP ENCL FRAME PORCH
36 square feet
G
FRBAY FRAME BAY
27 square feet
Parcel Images
Please note:
this tab is for informational purposes only and may not show all delinquencies, see the Taxes tab for more accurate delinquent taxes due.