Elected Officials
Courts
Departments
Initiatives
Open Government
About
Login / Register
Home
/
Property & Tax Records
/
Property Records
/
Property & Tax Search
/
Parcel Profile
/
Print View
Search for Another Parcel
Parcel Profile
Historical Card
Sketches
Photos
Tax Map
Taxes
Print View
Print This Page
Address: 509 W 7 ST
Parcel: 17040016010500
Parcel Profile
Address
509 | W | 7 | ST
Street Status
PAVED
School District
CITY OF ERIE SCHOOL
Acreage
0.1148
Classification
R
Land Use Code
SINGLE FAMILY
Legal Description
509 W 7TH ST 50 X 100
Square Feet
3127
Topo
LEVEL
Utility
ALL PUBLIC
Zoning
Please contact your municipal zoning officer
Deed Book
2021
Deed Page
026303
2026 Tax Values
Land Value / Taxable
8,100 / 8,100.00
Building Value / Taxable
84,200 / 84,200.00
Total Value / Taxable
92,300 / 92,300.00
Clean & Green
Inactive
Homestead Status
Active
Farmstead Status
Inactive
Lerta Amount
0
Lerta Expiration Year
0
Residential Data
Card 1
Style
OLD STYLE
Basement
FULL
Year Built
1912
Exterior Wall
MASONRY & FRAME
Total Living Area
3127
Full Baths
3
Half Baths
1
Fuel Type
GAS
Heating
CENTRAL A/C
Heating System
FORCED AIR
Stories
2.0
Total Bedrooms
6
Total Family Rooms
1
Total Rooms
11
Fireplaces
2
Other Buildings & Yards
No OBY Data Found
Sales History
Sale Date
Type
Price
Book / Page
Other Info
10/1/2021
LAND & BUILDING
166500
2021 / 026303
SPECIAL WARRANTY DEED
3/28/2019
LAND & BUILDING
131500
2019 / 005318
SPECIAL WARRANTY DEED
4/15/2004
LAND & BUILDING
90000
1125 / 0116
WARRANTY/SURVIVORSHIP DEED
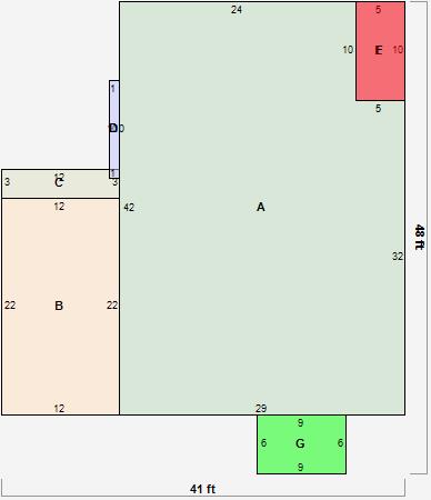
Parcel Sketches
Residential Card 1
A
MAIN
1168 square feet
B
FR GR FRAME GARAGE 1S FR ONE STORY FRAME
264 square feet
C
MA_PT CONC/MAS PATIO
36 square feet
D
FRBAY FRAME BAY
10 square feet
E
WDDCK WOOD DECKS
50 square feet
F
EFP ENCL FRAME PORCH 1S FR ONE STORY FRAME
50 square feet
G
EFP ENCL FRAME PORCH
54 square feet
Parcel Images
Please note:
this tab is for informational purposes only and may not show all delinquencies, see the Taxes tab for more accurate delinquent taxes due.