Elected Officials
Courts
Departments
Initiatives
Open Government
About
Login / Register
Home
/
Property & Tax Records
/
Property Records
/
Property & Tax Search
/
Parcel Profile
/
Print View
Search for Another Parcel
Parcel Profile
Historical Card
Sketches
Photos
Tax Map
Taxes
Print View
Print This Page
Address: 709 CHERRY ST
Parcel: 17040016013400
Parcel Profile
Address
709 | CHERRY | ST
Street Status
PAVED
School District
CITY OF ERIE SCHOOL
Acreage
0.0397
Classification
R
Land Use Code
SINGLE FAMILY
Legal Description
709 CHERRY ST 36X48
Square Feet
1524
Topo
LEVEL
Utility
ALL PUBLIC
Zoning
Please contact your municipal zoning officer
Deed Book
2013
Deed Page
033265
2026 Tax Values
Land Value / Taxable
6,600 / 6,600.00
Building Value / Taxable
38,400 / 38,400.00
Total Value / Taxable
45,000 / 45,000.00
Clean & Green
Inactive
Homestead Status
Inactive
Farmstead Status
Inactive
Lerta Amount
0
Lerta Expiration Year
0
Residential Data
Card 1
Style
CONVENTIONAL
Basement
FULL
Year Built
1872
Exterior Wall
FRAME
Total Living Area
1524
Full Baths
1
Half Baths
1
Fuel Type
GAS
Heating
CENTRAL
Heating System
FORCED AIR
Stories
2.0
Total Bedrooms
2
Total Family Rooms
0
Total Rooms
5
Fireplaces
0
Other Buildings & Yards
No OBY Data Found
Sales History
Sale Date
Type
Price
Book / Page
Other Info
12/30/2013
LAND & BUILDING
22000
2013 / 033265
DEED
7/8/2013
LAND & BUILDING
2117
2013 / 017355
SHERIFF'S DED
7/1/2002
LAND & BUILDING
55000
896 / 285
7/22/1986
0
1639 / 0317
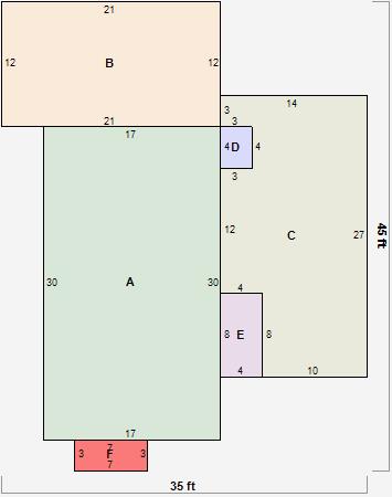
Parcel Sketches
Residential Card 1
A
MAIN
510 square feet
B
1S FR ONE STORY FRAME 1S FR ONE STORY FRAME
252 square feet
C
MA_PT CONC/MAS PATIO
334 square feet
D
OFP OPEN FRAME PORCH
12 square feet
E
OFP OPEN FRAME PORCH
32 square feet
F
EFP ENCL FRAME PORCH
21 square feet
Parcel Images
Please note:
this tab is for informational purposes only and may not show all delinquencies, see the Taxes tab for more accurate delinquent taxes due.