Elected Officials
Courts
Departments
Initiatives
Open Government
About
Login / Register
Home
/
Property & Tax Records
/
Property Records
/
Property & Tax Search
/
Parcel Profile
/
Print View
Search for Another Parcel
Parcel Profile
Historical Card
Sketches
Photos
Tax Map
Taxes
Print View
Print This Page
Address: 422 WALNUT ST
Parcel: 17040017020100
Parcel Profile
Address
422 | WALNUT | ST
Street Status
PAVED
School District
CITY OF ERIE SCHOOL
Acreage
0.0758
Classification
R
Land Use Code
THREE FAMILY
Legal Description
422 WALNUT ST 40X82.5
Square Feet
2144
Topo
LEVEL
Utility
ALL PUBLIC
Zoning
Please contact your municipal zoning officer
Deed Book
2012
Deed Page
030960
2025 Tax Values
Land Value / Taxable
7,600 / 7,600.00
Building Value / Taxable
7,400 / 7,400.00
Total Value / Taxable
15,000 / 15,000.00
Clean & Green
Inactive
Homestead Status
Inactive
Farmstead Status
Inactive
Lerta Amount
0
Lerta Expiration Year
0
Residential Data
Card 1
Style
OLD STYLE
Basement
PART
Year Built
1892
Exterior Wall
COMPOSITION
Total Living Area
2144
Full Baths
3
Half Baths
0
Fuel Type
GAS
Heating
CENTRAL
Heating System
FORCED AIR
Stories
2.0
Total Bedrooms
5
Total Family Rooms
0
Total Rooms
10
Fireplaces
0
Other Buildings & Yards
No OBY Data Found
Sales History
Sale Date
Type
Price
Book / Page
Other Info
11/13/2012
LAND & BUILDING
15000
2012 / 030960
SPECIAL WARRANTY DEED
3/8/1996
0
0427 / 1394
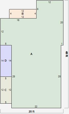
Parcel Sketches
Residential Card 1
A
MAIN
1048 square feet
B
1S FR ONE STORY FRAME
48 square feet
C
OFP OPEN FRAME PORCH
60 square feet
D
EFP ENCL FRAME PORCH
70 square feet
Parcel Images