Elected Officials
Courts
Departments
Initiatives
Open Government
About
Login / Register
Home
/
Property & Tax Records
/
Property Records
/
Property & Tax Search
/
Parcel Profile
/
Print View
Search for Another Parcel
Parcel Profile
Historical Card
Sketches
Photos
Tax Map
Taxes
Print View
Print This Page
Address: 651 W 7TH ST
Parcel: 17040019011700
Parcel Profile
Address
651 | W | 7TH | ST
Street Status
PAVED
School District
CITY OF ERIE SCHOOL
Acreage
0.1553
Classification
R
Land Use Code
TWO FAMILY
Legal Description
651 W 7TH ST 41.25X165
Square Feet
3080
Topo
LEVEL
Utility
ALL PUBLIC
Zoning
Please contact your municipal zoning officer
Deed Book
0356
Deed Page
0068
2026 Tax Values
Land Value / Taxable
8,800 / 8,800.00
Building Value / Taxable
84,250 / 84,250.00
Total Value / Taxable
93,050 / 93,050.00
Clean & Green
Inactive
Homestead Status
Active
Farmstead Status
Inactive
Lerta Amount
0
Lerta Expiration Year
0
Residential Data
Card 1
Style
OLD STYLE
Basement
FULL
Year Built
1920
Exterior Wall
BRICK
Total Living Area
3080
Full Baths
3
Half Baths
0
Fuel Type
GAS
Heating
CENTRAL
Heating System
FORCED AIR
Stories
2.0
Total Bedrooms
4
Total Family Rooms
0
Total Rooms
7
Fireplaces
0
Other Buildings & Yards
No OBY Data Found
Sales History
Sale Date
Type
Price
Book / Page
Other Info
9/29/1994
0
0356 / 0068
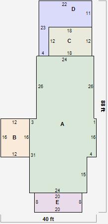
Parcel Sketches
Residential Card 1
A
MAIN
1432 square feet
B
CARPT CARPORT EFP ENCL FRAME PORCH
192 square feet
C
MA_PT CONC/MAS PATIO 1S FR ONE STORY FRAME
216 square feet
D
WDDCK WOOD DECKS WDDCK WOOD DECKS
290 square feet
E
OMP OPEN MASONRY PORCH
160 square feet
Parcel Images
Please note:
this tab is for informational purposes only and may not show all delinquencies, see the Taxes tab for more accurate delinquent taxes due.