Elected Officials
Courts
Departments
Initiatives
Open Government
About
Login / Register
Home
/
Property & Tax Records
/
Property Records
/
Property & Tax Search
/
Parcel Profile
/
Print View
Search for Another Parcel
Parcel Profile
Historical Card
Sketches
Photos
Tax Map
Taxes
Print View
Print This Page
Address: 626 CHERRY ST
Parcel: 17040019020100
Parcel Profile
Address
626 | CHERRY | ST
Street Status
PAVED | SIDEWALK
School District
CITY OF ERIE SCHOOL
Acreage
0.1240
Classification
R
Land Use Code
SINGLE FAMILY
Legal Description
626 CHERRY ST 45 X 120
Square Feet
2911
Topo
LEVEL
Utility
ALL PUBLIC
Zoning
Please contact your municipal zoning officer
Deed Book
2024
Deed Page
005024
2026 Tax Values
Land Value / Taxable
8,600 / 8,600.00
Building Value / Taxable
132,200 / 132,200.00
Total Value / Taxable
140,800 / 140,800.00
Clean & Green
Inactive
Homestead Status
Active
Farmstead Status
Inactive
Lerta Amount
0
Lerta Expiration Year
0
Residential Data
Card 1
Style
OLD STYLE
Basement
FULL
Year Built
1929
Exterior Wall
BRICK
Total Living Area
2911
Full Baths
1
Half Baths
0
Fuel Type
GAS
Heating
CENTRAL
Heating System
HOT WATER
Stories
2.0
Total Bedrooms
4
Total Family Rooms
0
Total Rooms
9
Fireplaces
1
Other Buildings & Yards
Description
Built
Width
Length
Area
BRICK OR STONE DETACHED GAR.
1929
20
20
400
Sales History
Sale Date
Type
Price
Book / Page
Other Info
4/4/2024
LAND & BUILDING
260000
2024 / 005024
SPECIAL WARRANTY DEED
11/10/2014
LAND & BUILDING
0
2014 / 24138
QUIT CLAIM DEED
8/22/2000
LAND & BUILDING
109700
722 / 175
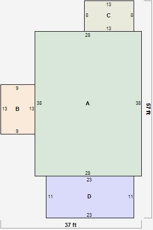
Parcel Sketches
Residential Card 1
A
MAIN
1064 square feet
B
OMP OPEN MASONRY PORCH
117 square feet
C
1SMAS MASONRY
104 square feet
D
UNFIN BSMT BASEMENT UNFINISHED 1SMAS MASONRY
253 square feet
Parcel Images
Please note:
this tab is for informational purposes only and may not show all delinquencies, see the Taxes tab for more accurate delinquent taxes due.