Elected Officials
Courts
Departments
Initiatives
Open Government
About
Login / Register
Home
/
Property & Tax Records
/
Property Records
/
Property & Tax Search
/
Parcel Profile
/
Print View
Search for Another Parcel
Parcel Profile
Historical Card
Sketches
Photos
Tax Map
Taxes
Print View
Print This Page
Address: 661 W 4 ST
Parcel: 17040020022300
Parcel Profile
Address
661 | W | 4 | ST
Street Status
PAVED
School District
CITY OF ERIE SCHOOL
Acreage
0.0781
Classification
R
Land Use Code
SINGLE FAMILY
Legal Description
661 W 4 ST 41.25X82.5
Square Feet
1130
Topo
LEVEL
Utility
ALL PUBLIC
Zoning
Please contact your municipal zoning officer
Deed Book
2016
Deed Page
020433
2026 Tax Values
Land Value / Taxable
7,600 / 7,600.00
Building Value / Taxable
31,400 / 31,400.00
Total Value / Taxable
39,000 / 39,000.00
Clean & Green
Inactive
Homestead Status
Inactive
Farmstead Status
Inactive
Lerta Amount
0
Lerta Expiration Year
0
Residential Data
Card 1
Style
CAPE
Basement
FULL
Year Built
1900
Exterior Wall
COMPOSITION
Total Living Area
1130
Full Baths
2
Half Baths
0
Fuel Type
GAS
Heating
CENTRAL
Heating System
FORCED AIR
Stories
1.0
Total Bedrooms
4
Total Family Rooms
0
Total Rooms
9
Fireplaces
0
Other Buildings & Yards
No OBY Data Found
Sales History
Sale Date
Type
Price
Book / Page
Other Info
9/20/2016
LAND & BUILDING
5400
2016 / 020433
SPECIAL WARRANTY DEED
8/4/2010
LAND & BUILDING
13300
2010 / 018997
DEED
3/30/2007
LAND & BUILDING
0
1405 / 0486
WARRANTY/SURVIVORSHIP DEED
2/5/1974
0
1113 / 0376
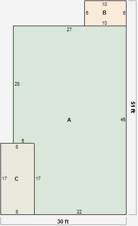
Parcel Sketches
Residential Card 1
A
MAIN
1130 square feet
B
EFP ENCL FRAME PORCH
60 square feet
C
EFP ENCL FRAME PORCH
136 square feet
Parcel Images