Elected Officials
Courts
Departments
Initiatives
Open Government
About
Login / Register
Home
/
Property & Tax Records
/
Property Records
/
Property & Tax Search
/
Parcel Profile
/
Print View
Search for Another Parcel
Parcel Profile
Historical Card
Sketches
Photos
Tax Map
Taxes
Print View
Print This Page
Address: 301 POPLAR ST
Parcel: 17040021012200
Parcel Profile
Address
301 | POPLAR | ST
Street Status
PAVED
School District
CITY OF ERIE SCHOOL
Acreage
0.0489
Classification
R
Land Use Code
TWO FAMILY
Legal Description
301 POPLAR ST 30X71
Square Feet
1789
Topo
LEVEL
Utility
ALL PUBLIC
Zoning
Please contact your municipal zoning officer
Deed Book
1304
Deed Page
1051
2026 Tax Values
Land Value / Taxable
6,900 / 6,900.00
Building Value / Taxable
49,300 / 49,300.00
Total Value / Taxable
56,200 / 56,200.00
Clean & Green
Inactive
Homestead Status
Inactive
Farmstead Status
Inactive
Lerta Amount
0
Lerta Expiration Year
0
Residential Data
Card 1
Style
OLD STYLE
Basement
FULL
Year Built
1900
Exterior Wall
ALUMINUM/VINYL
Total Living Area
1789
Full Baths
2
Half Baths
0
Fuel Type
GAS
Heating
CENTRAL
Heating System
FORCED AIR
Stories
2.0
Total Bedrooms
4
Total Family Rooms
0
Total Rooms
8
Fireplaces
0
Other Buildings & Yards
No OBY Data Found
Sales History
Sale Date
Type
Price
Book / Page
Other Info
2/3/2006
LAND & BUILDING
30000
1304 / 1051
WARRANTY/SURVIVORSHIP DEED
10/24/1986
0
1655 / 0141
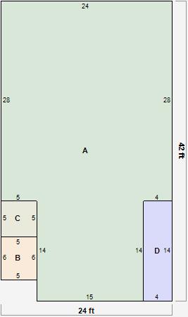
Parcel Sketches
Residential Card 1
A
MAIN
882 square feet
B
OFP OPEN FRAME PORCH
30 square feet
C
UNFIN BSMT BASEMENT UNFINISHED 1S FR ONE STORY FRAME
25 square feet
D
EFP ENCL FRAME PORCH
56 square feet
Parcel Images
Please note:
this tab is for informational purposes only and may not show all delinquencies, see the Taxes tab for more accurate delinquent taxes due.