Elected Officials
Courts
Departments
Initiatives
Open Government
About
Login / Register
Home
/
Property & Tax Records
/
Property Records
/
Property & Tax Search
/
Parcel Profile
/
Print View
Search for Another Parcel
Parcel Profile
Historical Card
Sketches
Photos
Tax Map
Taxes
Print View
Print This Page
Address: 325 27 POPLAR ST
Parcel: 17040021014500
Parcel Profile
Address
325 | 27 | POPLAR | ST
Street Status
PAVED | SIDEWALK
School District
CITY OF ERIE SCHOOL
Acreage
0.0554
Classification
R
Land Use Code
TWO FAMILY
Legal Description
325 27 POPLAR ST 33.8 X 71
Square Feet
1464
Topo
LEVEL
Utility
ALL PUBLIC
Zoning
Please contact your municipal zoning officer
Deed Book
2024
Deed Page
018566
2026 Tax Values
Land Value / Taxable
7,000 / 7,000.00
Building Value / Taxable
21,900 / 21,900.00
Total Value / Taxable
28,900 / 28,900.00
Clean & Green
Inactive
Homestead Status
Inactive
Farmstead Status
Inactive
Lerta Amount
0
Lerta Expiration Year
0
Residential Data
Card 1
Style
OLD STYLE
Basement
FULL
Year Built
1897
Exterior Wall
ALUMINUM/VINYL
Total Living Area
1464
Full Baths
2
Half Baths
0
Fuel Type
GAS
Heating
CENTRAL
Heating System
FORCED AIR
Stories
2.0
Total Bedrooms
4
Total Family Rooms
0
Total Rooms
8
Fireplaces
0
Other Buildings & Yards
No OBY Data Found
Sales History
Sale Date
Type
Price
Book / Page
Other Info
11/8/2024
LAND & BUILDING
50000
2024 / 018566
SPECIAL WARRANTY DEED
2/11/2013
LAND & BUILDING
12000
2013 / 003294
SPECIAL WARRANTY DEED
12/7/2011
LAND & BUILDING
3640
2011 / 029339
SHERIFF'S DED
7/29/2005
LAND & BUILDING
0
1255 / 2346
QUIT CLAIM DEED
11/1/2001
0
0822 / 0512
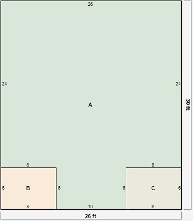
Parcel Sketches
Residential Card 1
A
MAIN
684 square feet
B
OFP OPEN FRAME PORCH 1S FR ONE STORY FRAME
48 square feet
C
OFP OPEN FRAME PORCH 1S FR ONE STORY FRAME
48 square feet
Parcel Images
Please note:
this tab is for informational purposes only and may not show all delinquencies, see the Taxes tab for more accurate delinquent taxes due.