Elected Officials
Courts
Departments
Initiatives
Open Government
About
Login / Register
Home
/
Property & Tax Records
/
Property Records
/
Property & Tax Search
/
Parcel Profile
/
Print View
Search for Another Parcel
Parcel Profile
Historical Card
Sketches
Photos
Tax Map
Taxes
Print View
Print This Page
Address: 710 12 W 8 ST
Parcel: 17040022011900
Parcel Profile
Address
710 | 12 | W | 8 | ST
Street Status
PAVED
School District
CITY OF ERIE SCHOOL
Acreage
0.1562
Classification
R
Land Use Code
TWO FAMILY
Legal Description
710 2 W 8 ST 41.25 X 165
Square Feet
2378
Topo
LEVEL
Utility
ALL PUBLIC
Zoning
Please contact your municipal zoning officer
Deed Book
2016
Deed Page
001986
2026 Tax Values
Land Value / Taxable
8,800 / 8,800.00
Building Value / Taxable
56,400 / 56,400.00
Total Value / Taxable
65,200 / 65,200.00
Clean & Green
Inactive
Homestead Status
Inactive
Farmstead Status
Inactive
Lerta Amount
0
Lerta Expiration Year
0
Residential Data
Card 1
Style
OLD STYLE
Basement
FULL
Year Built
1892
Exterior Wall
COMPOSITION
Total Living Area
2378
Full Baths
2
Half Baths
0
Fuel Type
GAS
Heating
CENTRAL
Heating System
HOT WATER
Stories
2.0
Total Bedrooms
2
Total Family Rooms
0
Total Rooms
9
Fireplaces
0
Other Buildings & Yards
Description
Built
Width
Length
Area
FRAME OR CB DETACHED GARAGE
1910
10
18
180
Sales History
Sale Date
Type
Price
Book / Page
Other Info
1/29/2016
LAND & BUILDING
50000
2016 / 001986
DEED
1/1/1969
0
0682 / 0545
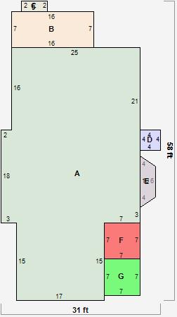
Parcel Sketches
Residential Card 1
A
MAIN
1165 square feet
B
EFP ENCL FRAME PORCH
112 square feet
C
MA STOOP/TERR MAS STOOP
10 square feet
D
MA STOOP/TERR MAS STOOP
16 square feet
E
FRBAY FRAME BAY FRBAY FRAME BAY
24 square feet
F
EFP ENCL FRAME PORCH
49 square feet
G
OFP OPEN FRAME PORCH
49 square feet
Parcel Images
Please note:
this tab is for informational purposes only and may not show all delinquencies, see the Taxes tab for more accurate delinquent taxes due.