Elected Officials
Courts
Departments
Initiatives
Open Government
About
Login / Register
Home
/
Property & Tax Records
/
Property Records
/
Property & Tax Search
/
Parcel Profile
/
Print View
Search for Another Parcel
Parcel Profile
Historical Card
Sketches
Photos
Tax Map
Taxes
Print View
Print This Page
Address: 705 W 3RD ST
Parcel: 17040024010600
Parcel Profile
Address
705 | W | 3RD | ST
Street Status
PAVED | SIDEWALK
School District
CITY OF ERIE SCHOOL
Acreage
0.0758
Classification
R
Land Use Code
SINGLE FAMILY
Legal Description
705 W 3RD ST 33X100
Square Feet
1373
Topo
LEVEL
Utility
ALL PUBLIC
Zoning
Please contact your municipal zoning officer
Deed Book
0709
Deed Page
1172
2026 Tax Values
Land Value / Taxable
7,600 / 7,600.00
Building Value / Taxable
28,600 / 28,600.00
Total Value / Taxable
36,200 / 36,200.00
Clean & Green
Inactive
Homestead Status
Active
Farmstead Status
Inactive
Lerta Amount
0.00
Lerta Expiration Year
2013
Residential Data
Card 1
Style
OLD STYLE
Basement
PART
Year Built
1897
Exterior Wall
COMPOSITION
Total Living Area
1373
Full Baths
1
Half Baths
0
Fuel Type
GAS
Heating
CENTRAL
Heating System
FORCED AIR
Stories
1.5
Total Bedrooms
3
Total Family Rooms
0
Total Rooms
6
Fireplaces
0
Other Buildings & Yards
No OBY Data Found
Sales History
Sale Date
Type
Price
Book / Page
Other Info
6/15/2000
LAND & BUILDING
2000
0709 / 1172
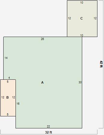
Parcel Sketches
Residential Card 1
A
MAIN
716 square feet
B
OFP OPEN FRAME PORCH
60 square feet
C
1S FR ONE STORY FRAME
120 square feet
Parcel Images
Please note:
this tab is for informational purposes only and may not show all delinquencies, see the Taxes tab for more accurate delinquent taxes due.