Elected Officials
Courts
Departments
Initiatives
Open Government
About
Login / Register
Home
/
Property & Tax Records
/
Property Records
/
Property & Tax Search
/
Parcel Profile
/
Print View
Search for Another Parcel
Parcel Profile
Historical Card
Sketches
Photos
Tax Map
Taxes
Print View
Print This Page
Address: 632 LIBERTY ST
Parcel: 17040025020000
Parcel Profile
Address
632 | LIBERTY | ST
Street Status
PAVED | SIDEWALK
School District
CITY OF ERIE SCHOOL
Acreage
0.0362
Classification
R
Land Use Code
SINGLE FAMILY
Legal Description
632 LIBERTY ST 30X52.5
Square Feet
1666
Topo
LEVEL
Utility
ALL PUBLIC
Zoning
Please contact your municipal zoning officer
Deed Book
0746
Deed Page
0685
2026 Tax Values
Land Value / Taxable
6,600 / 6,600.00
Building Value / Taxable
52,400 / 52,400.00
Total Value / Taxable
59,000 / 59,000.00
Clean & Green
Inactive
Homestead Status
Active
Farmstead Status
Inactive
Lerta Amount
0
Lerta Expiration Year
0
Residential Data
Card 1
Style
OLD STYLE
Basement
FULL
Year Built
1921
Exterior Wall
MASONRY & FRAME
Total Living Area
1666
Full Baths
1
Half Baths
0
Fuel Type
GAS
Heating
CENTRAL
Heating System
FORCED AIR
Stories
2.0
Total Bedrooms
3
Total Family Rooms
0
Total Rooms
6
Fireplaces
0
Other Buildings & Yards
No OBY Data Found
Sales History
Sale Date
Type
Price
Book / Page
Other Info
12/15/2000
LAND & BUILDING
62900
0746 / 0685
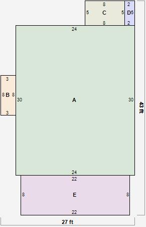
Parcel Sketches
Residential Card 1
A
MAIN
720 square feet
B
OFP OPEN FRAME PORCH
24 square feet
C
EFP ENCL FRAME PORCH 1S FR ONE STORY FRAME
40 square feet
D
FROVR FRAME OVERHANG
10 square feet
E
1S FR ONE STORY FRAME
176 square feet
Parcel Images
Please note:
this tab is for informational purposes only and may not show all delinquencies, see the Taxes tab for more accurate delinquent taxes due.