Elected Officials
Courts
Departments
Initiatives
Open Government
About
Login / Register
Home
/
Property & Tax Records
/
Property Records
/
Property & Tax Search
/
Parcel Profile
/
Print View
Search for Another Parcel
Parcel Profile
Historical Card
Sketches
Photos
Tax Map
Taxes
Print View
Print This Page
Address: 221 PLUM ST
Parcel: 17040027021500
Parcel Profile
Address
221 | PLUM | ST
Street Status
PAVED | SIDEWALK
School District
CITY OF ERIE SCHOOL
Acreage
0.0351
Classification
R
Land Use Code
SINGLE FAMILY
Legal Description
221 PLUM ST 34 X 45
Square Feet
1192
Topo
LEVEL
Utility
ALL PUBLIC
Zoning
Please contact your municipal zoning officer
Deed Book
2022
Deed Page
012729
2025 Tax Values
Land Value / Taxable
6,500 / 6,500.00
Building Value / Taxable
38,000 / 38,000.00
Total Value / Taxable
44,500 / 44,500.00
Clean & Green
Inactive
Homestead Status
Inactive
Farmstead Status
Inactive
Lerta Amount
0
Lerta Expiration Year
0
Residential Data
Card 1
Style
OLD STYLE
Basement
FULL
Year Built
1906
Exterior Wall
ALUMINUM/VINYL
Total Living Area
1192
Full Baths
1
Half Baths
0
Fuel Type
GAS
Heating
CENTRAL
Heating System
FORCED AIR
Stories
2.0
Total Bedrooms
3
Total Family Rooms
0
Total Rooms
6
Fireplaces
0
Other Buildings & Yards
No OBY Data Found
Sales History
Sale Date
Type
Price
Book / Page
Other Info
6/13/2022
LAND & BUILDING
35000
2022 / 012729
FIDUCIARY DEED
7/9/1990
0
0129 / 0250
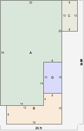
Parcel Sketches
Residential Card 1
A
MAIN
596 square feet
B
OFP OPEN FRAME PORCH
132 square feet
C
EFP ENCL FRAME PORCH
50 square feet
D
UNFIN BSMT BASEMENT UNFINISHED EFP ENCL FRAME PORCH
60 square feet
Parcel Images