Elected Officials
Courts
Departments
Initiatives
Open Government
About
Login / Register
Home
/
Property & Tax Records
/
Property Records
/
Property & Tax Search
/
Parcel Profile
/
Print View
Search for Another Parcel
Parcel Profile
Historical Card
Sketches
Photos
Tax Map
Taxes
Print View
Print This Page
Address: 706 PLUM ST
Parcel: 17040028010600
Parcel Profile
Address
706 | PLUM | ST
Street Status
PAVED
School District
CITY OF ERIE SCHOOL
Acreage
0.0750
Classification
R
Land Use Code
SINGLE FAMILY
Legal Description
706 PLUM ST 33X99
Square Feet
1284
Topo
LEVEL
Utility
ALL PUBLIC
Zoning
Please contact your municipal zoning officer
Deed Book
2020
Deed Page
002882
2026 Tax Values
Land Value / Taxable
7,500 / 7,500.00
Building Value / Taxable
39,000 / 39,000.00
Total Value / Taxable
46,500 / 46,500.00
Clean & Green
Inactive
Homestead Status
Inactive
Farmstead Status
Inactive
Lerta Amount
0
Lerta Expiration Year
0
Residential Data
Card 1
Style
OLD STYLE
Basement
FULL
Year Built
1906
Exterior Wall
ALUMINUM/VINYL
Total Living Area
1284
Full Baths
1
Half Baths
1
Fuel Type
GAS
Heating
CENTRAL
Heating System
FORCED AIR
Stories
2.0
Total Bedrooms
4
Total Family Rooms
0
Total Rooms
8
Fireplaces
0
Other Buildings & Yards
No OBY Data Found
Sales History
Sale Date
Type
Price
Book / Page
Other Info
2/13/2020
LAND & BUILDING
11611
2020 / 002882
QUIT CLAIM DEED
3/26/2019
LAND & BUILDING
11000
2019 / 005168
QUIT CLAIM DEED
11/9/2018
LAND & BUILDING
2715
2018 / 023334
SHERIFF'S DED
7/14/1986
0
1638 / 0141
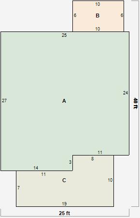
Parcel Sketches
Residential Card 1
A
MAIN
642 square feet
B
OFP OPEN FRAME PORCH
60 square feet
C
OFP OPEN FRAME PORCH
157 square feet
Parcel Images
Please note:
this tab is for informational purposes only and may not show all delinquencies, see the Taxes tab for more accurate delinquent taxes due.