Elected Officials
Courts
Departments
Initiatives
Open Government
About
Login / Register
Home
/
Property & Tax Records
/
Property Records
/
Property & Tax Search
/
Parcel Profile
/
Print View
Search for Another Parcel
Parcel Profile
Historical Card
Sketches
Photos
Tax Map
Taxes
Print View
Print This Page
Address: 704 PLUM ST
Parcel: 17040028010700
Parcel Profile
Address
704 | PLUM | ST
Street Status
PAVED
School District
CITY OF ERIE SCHOOL
Acreage
0.0500
Classification
R
Land Use Code
SINGLE FAMILY
Legal Description
704 PLUM ST 33 X 66
Square Feet
1291
Topo
LEVEL
Utility
ALL PUBLIC
Zoning
Please contact your municipal zoning officer
Deed Book
2023
Deed Page
008672
2026 Tax Values
Land Value / Taxable
6,900 / 6,900.00
Building Value / Taxable
45,210 / 45,210.00
Total Value / Taxable
52,110 / 52,110.00
Clean & Green
Inactive
Homestead Status
Inactive
Farmstead Status
Inactive
Lerta Amount
0
Lerta Expiration Year
0
Residential Data
Card 1
Style
OLD STYLE
Basement
FULL
Year Built
1906
Exterior Wall
ALUMINUM/VINYL
Total Living Area
1291
Full Baths
1
Half Baths
1
Fuel Type
GAS
Heating
CENTRAL
Heating System
FORCED AIR
Stories
2.0
Total Bedrooms
4
Total Family Rooms
1
Total Rooms
8
Fireplaces
0
Other Buildings & Yards
No OBY Data Found
Sales History
Sale Date
Type
Price
Book / Page
Other Info
6/5/2023
LAND & BUILDING
0
2023 / 008672
SPECIAL WARRANTY DEED
2/22/2023
LAND & BUILDING
107000
2023 / 002712
SPECIAL WARRANTY DEED
5/6/2019
LAND & BUILDING
8000
2019 / 008157
SPECIAL WARRANTY DEED
2/8/2019
LAND & BUILDING
3084
2019 / 002233
SHERIFF'S DED
2/8/2019
LAND & BUILDING
3084
2019 / 002233
SHERIFF'S DED
1/30/2001
LAND & BUILDING
40000
750 / 141
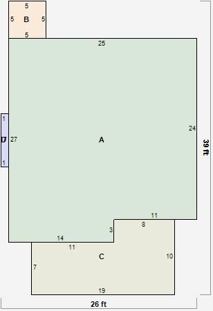
Parcel Sketches
Residential Card 1
A
MAIN
642 square feet
B
WDDCK WOOD DECKS
25 square feet
C
OFP OPEN FRAME PORCH
157 square feet
D
FROVR FRAME OVERHANG
7 square feet
Parcel Images
Please note:
this tab is for informational purposes only and may not show all delinquencies, see the Taxes tab for more accurate delinquent taxes due.