Elected Officials
Courts
Departments
Initiatives
Open Government
About
Login / Register
Home
/
Property & Tax Records
/
Property Records
/
Property & Tax Search
/
Parcel Profile
/
Print View
Search for Another Parcel
Parcel Profile
Historical Card
Sketches
Photos
Tax Map
Taxes
Print View
Print This Page
Address: 622 24 PLUM ST
Parcel: 17040028020100
Parcel Profile
Address
622 | 24 | PLUM | ST
Street Status
PAVED
School District
CITY OF ERIE SCHOOL
Acreage
0.1172
Classification
R
Land Use Code
TWO FAMILY
Legal Description
622 & 624 PLUM ST 41.25 X 123.75
Square Feet
2916
Topo
ABOVE STREET
Utility
ALL PUBLIC
Zoning
Please contact your municipal zoning officer
Deed Book
2021
Deed Page
003631
2026 Tax Values
Land Value / Taxable
8,500 / 8,500.00
Building Value / Taxable
51,310 / 51,310.00
Total Value / Taxable
59,810 / 59,810.00
Clean & Green
Inactive
Homestead Status
Inactive
Farmstead Status
Inactive
Lerta Amount
0
Lerta Expiration Year
0
Residential Data
Card 1
Style
OLD STYLE
Basement
FULL
Year Built
1890
Exterior Wall
ALUMINUM/VINYL
Total Living Area
2916
Full Baths
2
Half Baths
0
Fuel Type
GAS
Heating
CENTRAL
Heating System
FORCED AIR
Stories
2.0
Total Bedrooms
6
Total Family Rooms
0
Total Rooms
12
Fireplaces
0
Other Buildings & Yards
No OBY Data Found
Sales History
Sale Date
Type
Price
Book / Page
Other Info
2/16/2021
LAND & BUILDING
96000
2021 / 003631
SPECIAL WARRANTY DEED
7/18/2019
LAND & BUILDING
85000
2019 / 013849
SPECIAL WARRANTY DEED
12/9/1998
LAND & BUILDING
85000
605 / 56
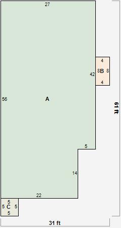
Parcel Sketches
Residential Card 1
A
MAIN
1442 square feet
B
UNFIN BSMT BASEMENT UNFINISHED FRBAY FRAME BAY
32 square feet
C
MA STOOP/TERR MAS STOOP
25 square feet
Parcel Images
Please note:
this tab is for informational purposes only and may not show all delinquencies, see the Taxes tab for more accurate delinquent taxes due.