Elected Officials
Courts
Departments
Initiatives
Open Government
About
Login / Register
Home
/
Property & Tax Records
/
Property Records
/
Property & Tax Search
/
Parcel Profile
/
Print View
Search for Another Parcel
Parcel Profile
Historical Card
Sketches
Photos
Tax Map
Taxes
Print View
Print This Page
Address: 501 CASCADE ST
Parcel: 17040029011700
Parcel Profile
Address
501 | CASCADE | ST
Street Status
PAVED
School District
CITY OF ERIE SCHOOL
Acreage
0.0625
Classification
R
Land Use Code
SINGLE FAMILY
Legal Description
501 CASCADE ST 33X82.5
Square Feet
1275
Topo
LEVEL
Utility
ALL PUBLIC
Zoning
Please contact your municipal zoning officer
Deed Book
2021
Deed Page
008031
2026 Tax Values
Land Value / Taxable
7,200 / 7,200.00
Building Value / Taxable
50,560 / 50,560.00
Total Value / Taxable
57,760 / 57,760.00
Clean & Green
Inactive
Homestead Status
Inactive
Farmstead Status
Inactive
Lerta Amount
0
Lerta Expiration Year
0
Residential Data
Card 1
Style
OLD STYLE
Basement
FULL
Year Built
1904
Exterior Wall
COMPOSITION
Total Living Area
1275
Full Baths
1
Half Baths
1
Fuel Type
GAS
Heating
CENTRAL
Heating System
FORCED AIR
Stories
1.5
Total Bedrooms
4
Total Family Rooms
0
Total Rooms
7
Fireplaces
0
Other Buildings & Yards
Description
Built
Width
Length
Area
FRAME OR CB DETACHED GARAGE
1961
20
24
480
Sales History
Sale Date
Type
Price
Book / Page
Other Info
4/5/2021
LAND & BUILDING
7500
2021 / 008031
QUIT CLAIM DEED
10/16/2019
LAND & BUILDING
0
2019 / 021181
COURT ORDERED
3/26/2002
LAND & BUILDING
52900
865 / 138
12/19/2001
LAND & BUILDING
7000
836 / 1687
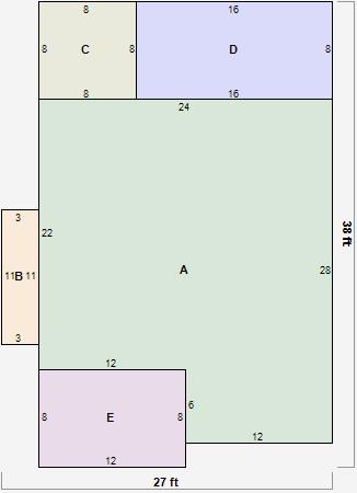
Parcel Sketches
Residential Card 1
A
MAIN
600 square feet
B
FRBAY FRAME BAY
33 square feet
C
1S FR ONE STORY FRAME
64 square feet
D
1S FR ONE STORY FRAME EFP ENCL FRAME PORCH
128 square feet
E
EFP ENCL FRAME PORCH
96 square feet
Parcel Images
Please note:
this tab is for informational purposes only and may not show all delinquencies, see the Taxes tab for more accurate delinquent taxes due.