Elected Officials
Courts
Departments
Initiatives
Open Government
About
Login / Register
Home
/
Property & Tax Records
/
Property Records
/
Property & Tax Search
/
Parcel Profile
/
Print View
Search for Another Parcel
Parcel Profile
Historical Card
Sketches
Photos
Tax Map
Taxes
Print View
Print This Page
Address: 936 W 6 ST
Parcel: 17040029013200
Parcel Profile
Address
936 | W | 6 | ST
Street Status
PAVED | SIDEWALK
School District
CITY OF ERIE SCHOOL
Acreage
0.1562
Classification
R
Land Use Code
SINGLE FAMILY
Legal Description
936 W 6TH ST 41.25X165
Square Feet
2904
Topo
LEVEL
Utility
ALL PUBLIC
Zoning
Please contact your municipal zoning officer
Deed Book
2022
Deed Page
011763
2026 Tax Values
Land Value / Taxable
8,800 / 8,800.00
Building Value / Taxable
122,630 / 122,630.00
Total Value / Taxable
131,430 / 131,430.00
Clean & Green
Inactive
Homestead Status
Active
Farmstead Status
Inactive
Lerta Amount
0
Lerta Expiration Year
0
Residential Data
Card 1
Style
OLD STYLE
Basement
FULL
Year Built
1914
Exterior Wall
BRICK
Total Living Area
2904
Full Baths
3
Half Baths
0
Fuel Type
GAS
Heating
CENTRAL
Heating System
FORCED AIR
Stories
2.0
Total Bedrooms
3
Total Family Rooms
0
Total Rooms
6
Fireplaces
0
Other Buildings & Yards
Description
Built
Width
Length
Area
FRAME OR CB DETACHED GARAGE
1916
12
20
240
Sales History
Sale Date
Type
Price
Book / Page
Other Info
6/2/2022
LAND & BUILDING
0
2022 / 011763
SPECIAL WARRANTY DEED
3/25/2002
LAND & BUILDING
143000
0864 / 1374
DEED
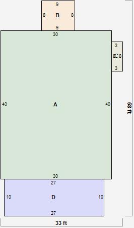
Parcel Sketches
Residential Card 1
A
MAIN
1200 square feet
B
EFP ENCL FRAME PORCH OFP OPEN FRAME PORCH
72 square feet
C
MABAY MASONRY BAY
24 square feet
D
OMP OPEN MASONRY PORCH
270 square feet
Parcel Images
Please note:
this tab is for informational purposes only and may not show all delinquencies, see the Taxes tab for more accurate delinquent taxes due.