Elected Officials
Courts
Departments
Initiatives
Open Government
About
Login / Register
Home
/
Property & Tax Records
/
Property Records
/
Property & Tax Search
/
Parcel Profile
/
Print View
Search for Another Parcel
Parcel Profile
Historical Card
Sketches
Photos
Tax Map
Taxes
Print View
Print This Page
Address: 416 PLUM ST
Parcel: 17040029020300
Parcel Profile
Address
416 | PLUM | ST
Street Status
PAVED | SIDEWALK
School District
CITY OF ERIE SCHOOL
Acreage
0.0918
Classification
R
Land Use Code
SINGLE FAMILY
Legal Description
416 PLUM ST 40X100
Square Feet
972
Topo
LEVEL
Utility
ALL PUBLIC
Zoning
Please contact your municipal zoning officer
Deed Book
2022
Deed Page
024424
2026 Tax Values
Land Value / Taxable
8,000 / 8,000.00
Building Value / Taxable
24,000 / 24,000.00
Total Value / Taxable
32,000 / 32,000.00
Clean & Green
Inactive
Homestead Status
Inactive
Farmstead Status
Inactive
Lerta Amount
0
Lerta Expiration Year
0
Residential Data
Card 1
Style
BUNGALOW
Basement
FULL
Year Built
1877
Exterior Wall
ALUMINUM/VINYL
Total Living Area
972
Full Baths
1
Half Baths
0
Fuel Type
GAS
Heating
CENTRAL A/C
Heating System
FORCED AIR
Stories
1.0
Total Bedrooms
3
Total Family Rooms
0
Total Rooms
6
Fireplaces
0
Other Buildings & Yards
No OBY Data Found
Sales History
Sale Date
Type
Price
Book / Page
Other Info
11/15/2022
LAND & BUILDING
75000
2022 / 024424
SPECIAL WARRANTY DEED
9/26/2016
LAND & BUILDING
31100
2016 / 020927
SPECIAL WARRANTY DEED
2/20/1986
0
1619 / 0110
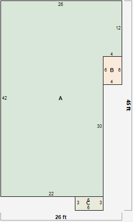
Parcel Sketches
Residential Card 1
A
MAIN
972 square feet
B
EFP ENCL FRAME PORCH
24 square feet
C
EFP ENCL FRAME PORCH
18 square feet
Parcel Images
Please note:
this tab is for informational purposes only and may not show all delinquencies, see the Taxes tab for more accurate delinquent taxes due.