Elected Officials
Courts
Departments
Initiatives
Open Government
About
Login / Register
Home
/
Property & Tax Records
/
Property Records
/
Property & Tax Search
/
Parcel Profile
/
Print View
Search for Another Parcel
Parcel Profile
Historical Card
Sketches
Photos
Tax Map
Taxes
Print View
Print This Page
Address: 942 W 5TH ST
Parcel: 17040029022600
Parcel Profile
Address
942 | W | 5TH | ST
Street Status
PAVED | SIDEWALK
School District
CITY OF ERIE SCHOOL
Acreage
0.1562
Classification
R
Land Use Code
SINGLE FAMILY
Legal Description
942 W 5TH ST 41.25 X 165
Square Feet
1472
Topo
LEVEL
Utility
ALL PUBLIC
Zoning
Please contact your municipal zoning officer
Deed Book
2015
Deed Page
012073
2026 Tax Values
Land Value / Taxable
8,800 / 8,800.00
Building Value / Taxable
46,100 / 46,100.00
Total Value / Taxable
54,900 / 54,900.00
Clean & Green
Inactive
Homestead Status
Inactive
Farmstead Status
Inactive
Lerta Amount
0
Lerta Expiration Year
0
Residential Data
Card 1
Style
OLD STYLE
Basement
FULL
Year Built
1902
Exterior Wall
ALUMINUM/VINYL
Total Living Area
1472
Full Baths
1
Half Baths
1
Fuel Type
GAS
Heating
CENTRAL
Heating System
FORCED AIR
Stories
2.0
Total Bedrooms
3
Total Family Rooms
0
Total Rooms
7
Fireplaces
0
Other Buildings & Yards
No OBY Data Found
Sales History
Sale Date
Type
Price
Book / Page
Other Info
6/12/2015
LAND & BUILDING
12000
2015 / 012073
FIDUCIARY DEED
3/5/1971
0
1039 / 0063
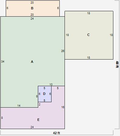
Parcel Sketches
Residential Card 1
A
MAIN
736 square feet
B
OFP OPEN FRAME PORCH WDDCK WOOD DECKS
120 square feet
C
CARPT CARPORT
324 square feet
D
EFP ENCL FRAME PORCH
30 square feet
E
OFP OPEN FRAME PORCH
242 square feet
Parcel Images
Please note:
this tab is for informational purposes only and may not show all delinquencies, see the Taxes tab for more accurate delinquent taxes due.