Elected Officials
Courts
Departments
Initiatives
Open Government
About
Login / Register
Home
/
Property & Tax Records
/
Property Records
/
Property & Tax Search
/
Parcel Profile
/
Print View
Search for Another Parcel
Parcel Profile
Historical Card
Sketches
Photos
Tax Map
Taxes
Print View
Print This Page
Address: 302 PLUM ST
Parcel: 17040030010500
Parcel Profile
Address
302 | PLUM | ST
Street Status
PAVED
School District
CITY OF ERIE SCHOOL
Acreage
0.0765
Classification
R
Land Use Code
SINGLE FAMILY
Legal Description
302 PLUM ST 49X68
Square Feet
1436
Topo
LEVEL
Utility
ALL PUBLIC
Zoning
Please contact your municipal zoning officer
Deed Book
2017
Deed Page
019457
2026 Tax Values
Land Value / Taxable
7,600 / 7,600.00
Building Value / Taxable
37,000 / 37,000.00
Total Value / Taxable
44,600 / 44,600.00
Clean & Green
Inactive
Homestead Status
Inactive
Farmstead Status
Inactive
Lerta Amount
0
Lerta Expiration Year
0
Residential Data
Card 1
Style
CONVENTIONAL
Basement
FULL
Year Built
1897
Exterior Wall
FRAME
Total Living Area
1436
Full Baths
1
Half Baths
0
Fuel Type
GAS
Heating
CENTRAL
Heating System
FORCED AIR
Stories
1.0
Total Bedrooms
3
Total Family Rooms
0
Total Rooms
6
Fireplaces
0
Other Buildings & Yards
Description
Built
Width
Length
Area
BRICK OR STONE DETACHED GAR.
1900
11
31
341
Sales History
Sale Date
Type
Price
Book / Page
Other Info
9/7/2017
LAND & BUILDING
13700
2017 / 019457
QUIT CLAIM DEED
1/23/2017
LAND & BUILDING
0
2017 / 001555
QUIT CLAIM DEED
10/4/1991
0
0179 / 0670
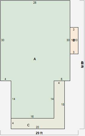
Parcel Sketches
Residential Card 1
A
MAIN
1004 square feet
B
UNFIN BSMT BASEMENT UNFINISHED FRBAY FRAME BAY
30 square feet
C
EFP ENCL FRAME PORCH
136 square feet
Parcel Images
Please note:
this tab is for informational purposes only and may not show all delinquencies, see the Taxes tab for more accurate delinquent taxes due.