Elected Officials
Courts
Departments
Initiatives
Open Government
About
Login / Register
Home
/
Property & Tax Records
/
Property Records
/
Property & Tax Search
/
Parcel Profile
/
Print View
Search for Another Parcel
Parcel Profile
Historical Card
Sketches
Photos
Tax Map
Taxes
Print View
Print This Page
Address: 210 PLUM ST
Parcel: 17040030020100
Parcel Profile
Address
210 | PLUM | ST
Street Status
PAVED
School District
CITY OF ERIE SCHOOL
Acreage
0.0735
Classification
R
Land Use Code
SINGLE FAMILY
Legal Description
210 PLUM ST 40X80
Square Feet
1750
Topo
LEVEL
Utility
ALL PUBLIC
Zoning
Please contact your municipal zoning officer
Deed Book
2019
Deed Page
019335
2026 Tax Values
Land Value / Taxable
7,500 / 7,500.00
Building Value / Taxable
27,500 / 27,500.00
Total Value / Taxable
35,000 / 35,000.00
Clean & Green
Inactive
Homestead Status
Inactive
Farmstead Status
Inactive
Lerta Amount
0
Lerta Expiration Year
0
Residential Data
Card 1
Style
OLD STYLE
Basement
FULL
Year Built
1892
Exterior Wall
COMPOSITION
Total Living Area
1750
Full Baths
2
Half Baths
0
Fuel Type
GAS
Heating
CENTRAL
Heating System
FORCED AIR
Stories
1.5
Total Bedrooms
5
Total Family Rooms
0
Total Rooms
11
Fireplaces
0
Other Buildings & Yards
No OBY Data Found
Sales History
Sale Date
Type
Price
Book / Page
Other Info
12/21/2010
LAND & BUILDING
63000
2010 / 032239
FIDUCIARY DEED
12/13/2002
LAND & BUILDING
0
956 / 1542
AFFIDAVIT
1/12/1952
0
0613 / 0522
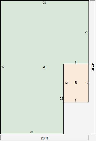
Parcel Sketches
Residential Card 1
A
MAIN
1000 square feet
B
EFP ENCL FRAME PORCH
96 square feet
Parcel Images