Elected Officials
Courts
Departments
Initiatives
Open Government
About
Login / Register
Home
/
Property & Tax Records
/
Property Records
/
Property & Tax Search
/
Parcel Profile
/
Print View
Search for Another Parcel
Parcel Profile
Historical Card
Sketches
Photos
Tax Map
Taxes
Print View
Print This Page
Address: 935 W 2 ST
Parcel: 17040030021000
Parcel Profile
Address
935 | W | 2 | ST
Street Status
PAVED
School District
CITY OF ERIE SCHOOL
Acreage
0.1515
Classification
R
Land Use Code
TWO FAMILY
Legal Description
935 W 2 ST 40 X 165
Square Feet
1704
Topo
LEVEL
Utility
ALL PUBLIC
Zoning
Please contact your municipal zoning officer
Deed Book
1553
Deed Page
0318
2026 Tax Values
Land Value / Taxable
8,800 / 8,800.00
Building Value / Taxable
46,400 / 46,400.00
Total Value / Taxable
55,200 / 55,200.00
Clean & Green
Inactive
Homestead Status
Inactive
Farmstead Status
Inactive
Lerta Amount
0
Lerta Expiration Year
0
Residential Data
Card 1
Style
OLD STYLE
Basement
PART
Year Built
1900
Exterior Wall
ALUMINUM/VINYL
Total Living Area
1704
Full Baths
2
Half Baths
0
Fuel Type
GAS
Heating
CENTRAL
Heating System
FORCED AIR
Stories
2.0
Total Bedrooms
4
Total Family Rooms
0
Total Rooms
8
Fireplaces
0
Other Buildings & Yards
No OBY Data Found
Sales History
Sale Date
Type
Price
Book / Page
Other Info
9/23/1984
0
1553 / 0318
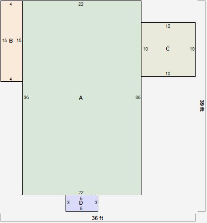
Parcel Sketches
Residential Card 1
A
MAIN
792 square feet
B
1S FR ONE STORY FRAME 1S FR ONE STORY FRAME
60 square feet
C
WDDCK WOOD DECKS
100 square feet
D
MA STOOP/TERR MAS STOOP
18 square feet
Parcel Images
Please note:
this tab is for informational purposes only and may not show all delinquencies, see the Taxes tab for more accurate delinquent taxes due.