Elected Officials
Courts
Departments
Initiatives
Open Government
About
Login / Register
Home
/
Property & Tax Records
/
Property Records
/
Property & Tax Search
/
Parcel Profile
/
Print View
Search for Another Parcel
Parcel Profile
Historical Card
Sketches
Photos
Tax Map
Taxes
Print View
Print This Page
Address: 702 CASCADE ST
Parcel: 17040031010700
Parcel Profile
Address
702 | CASCADE | ST
Street Status
PAVED | SIDEWALK
School District
CITY OF ERIE SCHOOL
Acreage
0.0804
Classification
R
Land Use Code
SINGLE FAMILY
Legal Description
702 CASCADE ST 34 X 103
Square Feet
1352
Topo
LEVEL
Utility
ALL PUBLIC
Zoning
Please contact your municipal zoning officer
Deed Book
1138
Deed Page
0383
2026 Tax Values
Land Value / Taxable
7,700 / 7,700.00
Building Value / Taxable
54,000 / 54,000.00
Total Value / Taxable
61,700 / 61,700.00
Clean & Green
Inactive
Homestead Status
Inactive
Farmstead Status
Inactive
Lerta Amount
0
Lerta Expiration Year
0
Residential Data
Card 1
Style
OLD STYLE
Basement
FULL
Year Built
1906
Exterior Wall
ALUMINUM/VINYL
Total Living Area
1352
Full Baths
1
Half Baths
0
Fuel Type
GAS
Heating
CENTRAL
Heating System
FORCED AIR
Stories
2.0
Total Bedrooms
4
Total Family Rooms
0
Total Rooms
8
Fireplaces
0
Other Buildings & Yards
No OBY Data Found
Sales History
Sale Date
Type
Price
Book / Page
Other Info
5/24/2004
LAND & BUILDING
53000
1138 / 0383
WARRANTY/SURVIVORSHIP DEED
6/27/1994
0
0342 / 0176
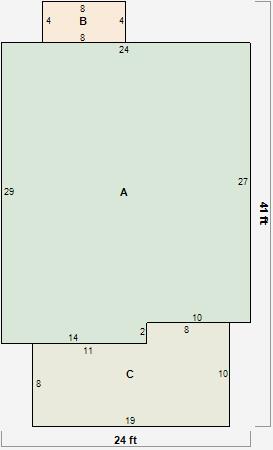
Parcel Sketches
Residential Card 1
A
MAIN
676 square feet
B
MA STOOP/TERR MAS STOOP
32 square feet
C
EFP ENCL FRAME PORCH
168 square feet
Parcel Images
Please note:
this tab is for informational purposes only and may not show all delinquencies, see the Taxes tab for more accurate delinquent taxes due.