Elected Officials
Courts
Departments
Initiatives
Open Government
About
Login / Register
Home
/
Property & Tax Records
/
Property Records
/
Property & Tax Search
/
Parcel Profile
/
Print View
Search for Another Parcel
Parcel Profile
Historical Card
Sketches
Photos
Tax Map
Taxes
Print View
Print This Page
Address: 1033 W 7 ST
Parcel: 17040031011500
Parcel Profile
Address
1033 | W | 7 | ST
Street Status
PAVED | SIDEWALK
School District
CITY OF ERIE SCHOOL
Acreage
0.1261
Classification
R
Land Use Code
SINGLE FAMILY
Legal Description
1033 W 7 ST 33.33X165
Square Feet
1578
Topo
LEVEL
Utility
ALL PUBLIC
Zoning
Please contact your municipal zoning officer
Deed Book
0991
Deed Page
1793
2026 Tax Values
Land Value / Taxable
8,600 / 8,600.00
Building Value / Taxable
50,600 / 50,600.00
Total Value / Taxable
59,200 / 59,200.00
Clean & Green
Inactive
Homestead Status
Active
Farmstead Status
Inactive
Lerta Amount
0
Lerta Expiration Year
0
Residential Data
Card 1
Style
OLD STYLE
Basement
FULL
Year Built
1905
Exterior Wall
FRAME
Total Living Area
1578
Full Baths
1
Half Baths
0
Fuel Type
GAS
Heating
CENTRAL A/C
Heating System
FORCED AIR
Stories
2.0
Total Bedrooms
4
Total Family Rooms
0
Total Rooms
8
Fireplaces
2
Other Buildings & Yards
Description
Built
Width
Length
Area
METAL SHED
1990
8
6
48
Sales History
Sale Date
Type
Price
Book / Page
Other Info
3/28/2003
LAND & BUILDING
0
0991 / 1793
AFFIDAVIT
1/9/1997
0
0479 / 0580
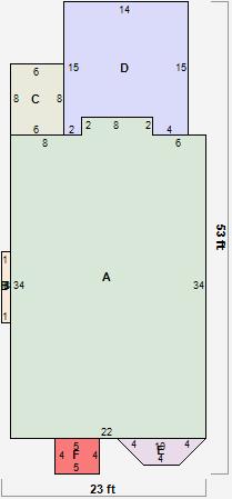
Parcel Sketches
Residential Card 1
A
MAIN
764 square feet
B
FROVR FRAME OVERHANG
8 square feet
C
FR UT FRAME UTILITY BUILDING
48 square feet
D
EFP ENCL FRAME PORCH
194 square feet
E
FRBAY FRAME BAY FRBAY FRAME BAY
21 square feet
F
OFP OPEN FRAME PORCH
20 square feet
Parcel Images
Please note:
this tab is for informational purposes only and may not show all delinquencies, see the Taxes tab for more accurate delinquent taxes due.