Elected Officials
Courts
Departments
Initiatives
Open Government
About
Login / Register
Home
/
Property & Tax Records
/
Property Records
/
Property & Tax Search
/
Parcel Profile
/
Print View
Search for Another Parcel
Parcel Profile
Historical Card
Sketches
Photos
Tax Map
Taxes
Print View
Print This Page
Address: 1041 W 6 ST
Parcel: 17040031021700
Parcel Profile
Address
1041 | W | 6 | ST
Street Status
PAVED | SIDEWALK
School District
CITY OF ERIE SCHOOL
Acreage
0.1515
Classification
R
Land Use Code
SINGLE FAMILY
Legal Description
1041 W 6TH ST 40X165
Square Feet
1154
Topo
LEVEL
Utility
ALL PUBLIC
Zoning
Please contact your municipal zoning officer
Deed Book
2024
Deed Page
005389
2026 Tax Values
Land Value / Taxable
8,800 / 8,800.00
Building Value / Taxable
35,100 / 35,100.00
Total Value / Taxable
43,900 / 43,900.00
Clean & Green
Inactive
Homestead Status
Inactive
Farmstead Status
Inactive
Lerta Amount
0
Lerta Expiration Year
0
Residential Data
Card 1
Style
BUNGALOW
Basement
FULL
Year Built
1900
Exterior Wall
ALUMINUM/VINYL
Total Living Area
1154
Full Baths
1
Half Baths
0
Fuel Type
GAS
Heating
CENTRAL
Heating System
FORCED AIR
Stories
1.0
Total Bedrooms
3
Total Family Rooms
0
Total Rooms
5
Fireplaces
0
Other Buildings & Yards
Description
Built
Width
Length
Area
FRAME OR CB DETACHED GARAGE
1920
24
36
864
Sales History
Sale Date
Type
Price
Book / Page
Other Info
4/12/2024
LAND & BUILDING
60000
2024 / 005389
SHERIFF'S DED
6/27/2003
LAND & BUILDING
0
1029 / 136
QUIT CLAIM DEED
10/12/1994
0
0357 / 2037
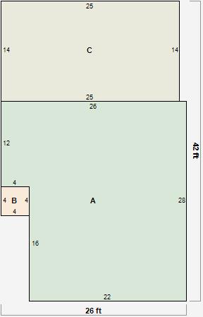
Parcel Sketches
Residential Card 1
A
MAIN
664 square feet
B
OFP OPEN FRAME PORCH
16 square feet
C
1S FR ONE STORY FRAME AT FN ATTIC-FINISHED
350 square feet
Parcel Images
Please note:
this tab is for informational purposes only and may not show all delinquencies, see the Taxes tab for more accurate delinquent taxes due.