Elected Officials
Courts
Departments
Initiatives
Open Government
About
Login / Register
Home
/
Property & Tax Records
/
Property Records
/
Property & Tax Search
/
Parcel Profile
/
Print View
Search for Another Parcel
Parcel Profile
Historical Card
Sketches
Photos
Tax Map
Taxes
Print View
Print This Page
Address: 1023 W 5TH ST
Parcel: 17040032010700
Parcel Profile
Address
1023 | W | 5TH | ST
Street Status
PAVED
School District
CITY OF ERIE SCHOOL
Acreage
0.1406
Classification
R
Land Use Code
SINGLE FAMILY
Legal Description
1023 W 5 ST 39.5 X 155
Square Feet
1298
Topo
LEVEL
Utility
ALL PUBLIC
Zoning
Please contact your municipal zoning officer
Deed Book
2016
Deed Page
026285
2026 Tax Values
Land Value / Taxable
8,700 / 8,700.00
Building Value / Taxable
31,300 / 31,300.00
Total Value / Taxable
40,000 / 40,000.00
Clean & Green
Inactive
Homestead Status
Inactive
Farmstead Status
Inactive
Lerta Amount
0
Lerta Expiration Year
0
Residential Data
Card 1
Style
BUNGALOW
Basement
FULL
Year Built
1882
Exterior Wall
ALUMINUM/VINYL
Total Living Area
1298
Full Baths
1
Half Baths
0
Fuel Type
GAS
Heating
CENTRAL
Heating System
FORCED AIR
Stories
1.0
Total Bedrooms
4
Total Family Rooms
0
Total Rooms
8
Fireplaces
0
Other Buildings & Yards
No OBY Data Found
Sales History
Sale Date
Type
Price
Book / Page
Other Info
12/2/2016
LAND & BUILDING
48000
2016 / 026285
SPECIAL WARRANTY DEED
7/18/2016
LAND & BUILDING
29000
2016 / 015020
DEED
4/8/2016
LAND & BUILDING
3407
2016 / 006847
SHERIFF'S DED
7/26/2002
LAND & BUILDING
77900
904 / 1363
8/17/1992
0
0226 / 1069
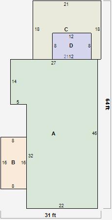
Parcel Sketches
Residential Card 1
A
MAIN
1082 square feet
B
EFP ENCL FRAME PORCH
128 square feet
C
WDDCK WOOD DECKS
378 square feet
D
EFP ENCL FRAME PORCH
96 square feet
Parcel Images
Please note:
this tab is for informational purposes only and may not show all delinquencies, see the Taxes tab for more accurate delinquent taxes due.