Elected Officials
Courts
Departments
Initiatives
Open Government
About
Login / Register
Home
/
Property & Tax Records
/
Property Records
/
Property & Tax Search
/
Parcel Profile
/
Print View
Search for Another Parcel
Parcel Profile
Historical Card
Sketches
Photos
Tax Map
Taxes
Print View
Print This Page
Address: 406 CASCADE ST
Parcel: 17040032020600
Parcel Profile
Address
406 | CASCADE | ST
Street Status
PAVED
School District
CITY OF ERIE SCHOOL
Acreage
0.1194
Classification
R
Land Use Code
SINGLE FAMILY
Legal Description
406 CASCADE ST 40 X 130
Square Feet
1544
Topo
LEVEL
Utility
ALL PUBLIC
Zoning
Please contact your municipal zoning officer
Deed Book
2021
Deed Page
007967
2026 Tax Values
Land Value / Taxable
8,500 / 8,500.00
Building Value / Taxable
48,460 / 48,460.00
Total Value / Taxable
56,960 / 56,960.00
Clean & Green
Inactive
Homestead Status
Inactive
Farmstead Status
Inactive
Lerta Amount
0
Lerta Expiration Year
0
Residential Data
Card 1
Style
OLD STYLE
Basement
FULL
Year Built
1912
Exterior Wall
ALUMINUM/VINYL
Total Living Area
1544
Full Baths
1
Half Baths
0
Fuel Type
GAS
Heating
CENTRAL
Heating System
FORCED AIR
Stories
2.0
Total Bedrooms
3
Total Family Rooms
0
Total Rooms
7
Fireplaces
0
Other Buildings & Yards
No OBY Data Found
Sales History
Sale Date
Type
Price
Book / Page
Other Info
4/5/2021
LAND & BUILDING
60000
2021 / 007967
SPECIAL WARRANTY DEED
8/15/2016
LAND & BUILDING
50000
2016 / 017547
SPECIAL WARRANTY DEED
11/1/2005
LAND & BUILDING
0
1283 / 1515
DEED
6/28/2004
LAND & BUILDING
35000
1149 / 1573
WARRANTY/SURVIVORSHIP DEED
5/7/1973
LAND & BUILDING
5500
1095 / 0336
DEED
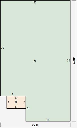
Parcel Sketches
Residential Card 1
A
MAIN
772 square feet
B
MA STOOP/TERR MAS STOOP
24 square feet
Parcel Images
Please note:
this tab is for informational purposes only and may not show all delinquencies, see the Taxes tab for more accurate delinquent taxes due.