Elected Officials
Courts
Departments
Initiatives
Open Government
About
Login / Register
Home
/
Property & Tax Records
/
Property Records
/
Property & Tax Search
/
Parcel Profile
/
Print View
Search for Another Parcel
Parcel Profile
Historical Card
Sketches
Photos
Tax Map
Taxes
Print View
Print This Page
Address: 1014 W 5 ST
Parcel: 17040032024000
Parcel Profile
Address
1014 | W | 5 | ST
Street Status
PAVED
School District
CITY OF ERIE SCHOOL
Acreage
0.0671
Classification
R
Land Use Code
SINGLE FAMILY
Legal Description
1014 W 5 ST 65 X 45
Square Feet
2104
Topo
LEVEL
Utility
ALL PUBLIC
Zoning
Please contact your municipal zoning officer
Deed Book
2021
Deed Page
031607
2026 Tax Values
Land Value / Taxable
6,600 / 6,600.00
Building Value / Taxable
61,100 / 61,100.00
Total Value / Taxable
67,700 / 67,700.00
Clean & Green
Inactive
Homestead Status
Inactive
Farmstead Status
Inactive
Lerta Amount
0
Lerta Expiration Year
0
Residential Data
Card 1
Style
OLD STYLE
Basement
FULL
Year Built
1900
Exterior Wall
COMPOSITION
Total Living Area
2104
Full Baths
1
Half Baths
0
Fuel Type
GAS
Heating
CENTRAL
Heating System
FORCED AIR
Stories
2.0
Total Bedrooms
2
Total Family Rooms
0
Total Rooms
5
Fireplaces
1
Other Buildings & Yards
Description
Built
Width
Length
Area
FRAME OR CB DETACHED GARAGE
1996
14
18
252
Sales History
Sale Date
Type
Price
Book / Page
Other Info
11/29/2021
LAND & BUILDING
80000
2021 / 031607
SPECIAL WARRANTY DEED
6/6/2016
0
2016 / 011451
COURT ORDERED
11/5/2009
0
1601 / 1542
SHERIFF'S DED
6/16/2008
LAND & BUILDING
0
1501 / 2246
COURT ORDERED
5/6/2008
LAND & BUILDING
0
1493 / 0107
SHERIFF'S DED
3/22/2002
LAND & BUILDING
54000
864 / 328
DEED
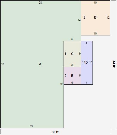
Parcel Sketches
Residential Card 1
A
MAIN
1052 square feet
B
OFP OPEN FRAME PORCH
120 square feet
C
EFP ENCL FRAME PORCH OFP OPEN FRAME PORCH
54 square feet
D
WDDCK WOOD DECKS
60 square feet
E
OFP OPEN FRAME PORCH OFP OPEN FRAME PORCH
36 square feet
Parcel Images
Please note:
this tab is for informational purposes only and may not show all delinquencies, see the Taxes tab for more accurate delinquent taxes due.