Elected Officials
Courts
Departments
Initiatives
Open Government
About
Login / Register
Home
/
Property & Tax Records
/
Property Records
/
Property & Tax Search
/
Parcel Profile
/
Print View
Search for Another Parcel
Parcel Profile
Historical Card
Sketches
Photos
Tax Map
Taxes
Print View
Print This Page
Address: 944 W 2 ST
Parcel: 17040038011300
Parcel Profile
Address
944 | W | 2 | ST
Street Status
PAVED | SIDEWALK
School District
CITY OF ERIE SCHOOL
Acreage
0.2516
Classification
R
Land Use Code
MULTIPLE DWELLINGS
Legal Description
944 W 2 ST 41.75 X 265.09 IRR | 0.2516 AC | REF S2017-13607
Square Feet
2808
Topo
LEVEL
Utility
ALL PUBLIC
Zoning
Please contact your municipal zoning officer
Deed Book
2022
Deed Page
019196
2026 Tax Values
Land Value / Taxable
65,800 / 65,800.00
Building Value / Taxable
279,800 / 279,800.00
Total Value / Taxable
345,600 / 345,600.00
Clean & Green
Inactive
Homestead Status
Inactive
Farmstead Status
Inactive
Lerta Amount
0.00
Lerta Expiration Year
2019
Residential Data
Card 1
Style
BUNGALOW
Basement
FULL
Year Built
1887
Exterior Wall
FRAME
Total Living Area
792
Full Baths
1
Half Baths
0
Fuel Type
ELECTRIC
Heating
CENTRAL
Heating System
HOT WATER
Stories
1.0
Total Bedrooms
2
Total Family Rooms
0
Total Rooms
4
Fireplaces
0
Card 2
Style
RAISED RANCH
Basement
FULL
Year Built
2008
Exterior Wall
ALUMINUM/VINYL
Total Living Area
672
Full Baths
1
Half Baths
0
Fuel Type
GAS
Heating
CENTRAL A/C
Heating System
FORCED AIR
Stories
1.0
Total Bedrooms
1
Total Family Rooms
0
Total Rooms
3
Fireplaces
0
Card 3
Style
CONVENTIONAL
Basement
NONE
Year Built
2009
Exterior Wall
ALUMINUM/VINYL
Total Living Area
1344
Full Baths
2
Half Baths
0
Fuel Type
GAS
Heating
CENTRAL A/C
Heating System
FORCED AIR
Stories
2.0
Total Bedrooms
4
Total Family Rooms
2
Total Rooms
6
Fireplaces
0
Other Buildings & Yards
No OBY Data Found
Sales History
Sale Date
Type
Price
Book / Page
Other Info
9/1/2022
LAND & BUILDING
335000
2022 / 019196
SPECIAL WARRANTY DEED
12/6/2019
LAND & BUILDING
282500
2019 / 025246
SPECIAL WARRANTY DEED
9/1/2015
LAND & BUILDING
287000
2015 / 019150
FIDUCIARY DEED
1/14/1999
LAND & BUILDING
47900
612 / 667
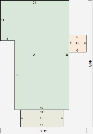
Parcel Sketches
Residential Card 1
A
MAIN
792 square feet
B
OFP OPEN FRAME PORCH
36 square feet
C
OFP OPEN FRAME PORCH
90 square feet
Residential Card 2
A
MAIN
672 square feet
B
EFP ENCL FRAME PORCH
100 square feet
C
OFP OPEN FRAME PORCH
20 square feet
D
FR GR FRAME GARAGE
552 square feet
E
EFP ENCL FRAME PORCH
64 square feet
Residential Card 3
A
MAIN
672 square feet
B
OFP OPEN FRAME PORCH
52 square feet
Parcel Images
Please note:
this tab is for informational purposes only and may not show all delinquencies, see the Taxes tab for more accurate delinquent taxes due.