Elected Officials
Courts
Departments
Initiatives
Open Government
About
Login / Register
Home
/
Property & Tax Records
/
Property Records
/
Property & Tax Search
/
Parcel Profile
/
Print View
Search for Another Parcel
Parcel Profile
Historical Card
Sketches
Photos
Tax Map
Taxes
Print View
Print This Page
Address: 814 W 2 ST
Parcel: 17040039020300
Parcel Profile
Address
814 | W | 2 | ST
Street Status
PAVED
School District
CITY OF ERIE SCHOOL
Acreage
0.0985
Classification
R
Land Use Code
SINGLE FAMILY
Legal Description
814 W 2 ST 37.83 X 113.43
Square Feet
748
Topo
ABOVE STREET
Utility
ALL PUBLIC
Zoning
Please contact your municipal zoning officer
Deed Book
1155
Deed Page
1375
2026 Tax Values
Land Value / Taxable
26,100 / 26,100.00
Building Value / Taxable
5,000 / 5,000.00
Total Value / Taxable
31,100 / 31,100.00
Clean & Green
Inactive
Homestead Status
Inactive
Farmstead Status
Inactive
Lerta Amount
0
Lerta Expiration Year
0
Residential Data
Card 1
Style
BUNGALOW
Basement
PART
Year Built
1877
Exterior Wall
ALUMINUM/VINYL
Total Living Area
748
Full Baths
1
Half Baths
0
Fuel Type
GAS
Heating
CENTRAL
Heating System
FORCED AIR
Stories
1.0
Total Bedrooms
2
Total Family Rooms
0
Total Rooms
5
Fireplaces
0
Other Buildings & Yards
No OBY Data Found
Sales History
Sale Date
Type
Price
Book / Page
Other Info
7/19/2004
LAND & BUILDING
0
1155 / 1375
SHERIFF'S DED
10/6/1970
0
1031 / 0204
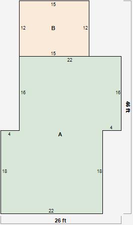
Parcel Sketches
Residential Card 1
A
MAIN
748 square feet
B
EFP ENCL FRAME PORCH
180 square feet
Parcel Images
Please note:
this tab is for informational purposes only and may not show all delinquencies, see the Taxes tab for more accurate delinquent taxes due.