Elected Officials
Courts
Departments
Initiatives
Open Government
About
Login / Register
Home
/
Property & Tax Records
/
Property Records
/
Property & Tax Search
/
Parcel Profile
/
Print View
Search for Another Parcel
Parcel Profile
Historical Card
Sketches
Photos
Tax Map
Taxes
Print View
Print This Page
Address: 346 W 2 ST
Parcel: 17040042012100
Parcel Profile
Address
346 | W | 2 | ST
Street Status
PAVED
School District
CITY OF ERIE SCHOOL
Acreage
0.0781
Classification
R
Land Use Code
SINGLE FAMILY
Legal Description
346 W 2 ST 41.25 X 82.5
Square Feet
762
Topo
LEVEL
Utility
ALL PUBLIC
Zoning
Please contact your municipal zoning officer
Deed Book
1520
Deed Page
0291
2026 Tax Values
Land Value / Taxable
7,600 / 7,600.00
Building Value / Taxable
39,500 / 39,500.00
Total Value / Taxable
47,100 / 47,100.00
Clean & Green
Inactive
Homestead Status
Inactive
Farmstead Status
Inactive
Lerta Amount
0
Lerta Expiration Year
0
Residential Data
Card 1
Style
BUNGALOW
Basement
FULL
Year Built
1953
Exterior Wall
ALUMINUM/VINYL
Total Living Area
762
Full Baths
1
Half Baths
0
Fuel Type
GAS
Heating
CENTRAL
Heating System
FORCED AIR
Stories
1.0
Total Bedrooms
2
Total Family Rooms
0
Total Rooms
4
Fireplaces
0
Other Buildings & Yards
No OBY Data Found
Sales History
Sale Date
Type
Price
Book / Page
Other Info
12/28/1983
0
1520 / 0291
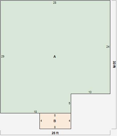
Parcel Sketches
Residential Card 1
A
MAIN
762 square feet
B
MA STOOP/TERR MAS STOOP CANPY CANOPY
32 square feet
Parcel Images
Please note:
this tab is for informational purposes only and may not show all delinquencies, see the Taxes tab for more accurate delinquent taxes due.